Maison neuve à
Lumigny-Nesles-Ormeaux
(77540) Référence :
CY2431992_1
Prix du projet : Maison avec Terrain
prix 292 000 €
- 5 pièces
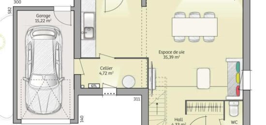
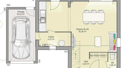
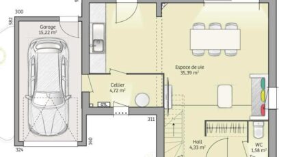
- 3 chambres
- Surface maison 90 m2
VENTE d'une maison F5 (90 m²) à Lumigny-Nesles-Ormeaux
PROCHE DE MEAUX - MAISON 5 PIÈCES NEUVE
En vente : à côté du Transilien P (gare de Marles-en-Brie, 35 min de Paris), nous sommes ravis de vous proposer à Lumigny-Nesles-Ormeaux (77540), cette maison de 5 pièces de 90 m² et de 440 m² de terrain. Elle offre trois chambres, une cuisine et une salle de bains.
Cette maison possède 2 niveaux. Elle est neuve.
L'École Maternelle les Ecureuils et l'École Primaire du Ru de la Fontaine sont implantées dans la commune. Niveau transports, il y a la gare Marles-en-Brie à moins de 10 minutes en voiture. On trouve un commerce et une poissonnerie à quelques minutes.
Elle est proposée à l'achat pour 292 000 €.
N'hésitez pas à prendre contact avec notre agence (YAHIAOUI Cedric : 06-66-57-00-63) pour tout renseignement sur cette maison, sur les démarches à suivre ou sur les modalités de vente. Maisons France Confort Magny-le-Hongre est là pour vous accompagner à toutes les étapes de votre projet.
Annonce proposée par un Agent Commercial Partenaire.
Mentions légales
Terrain proposé par un partenaire foncier selon disponibilités et autorisation de publicité au prix de 132 000 €. Hors droit d'enregistrement et frais de notaire. Terrain + Maison proposés au prix de 292 000 € (Hors branchements et raccordements, papiers peints, peintures, revêtement de sol dans les chambres. Tarif modifiable sans préavis). Etiquette énergie : A. Différents modèles disponibles pour ce terrain. Assurances et garanties du constructeur (RC professionnelle, décennale, dommage ouvrage, garantie de remboursement de l'acompte, livraison à prix et délai convenu) : https://www.maisons-france-confort.fr/mentions-legales/. HEXAOM Services est enregistré auprès de l'ORIAS en tant que Courtier en financement, Niveau 1, sous le numéro 14001345.Agence Maisons France Confort de Magny-le-Hongre (77700)
- Téléphone :
- 01 84 80 92 96
- Adressse :
- 11 rue de Courtalin
77700 Magny-le-Hongre, France
