Maison neuve à
Lumigny-Nesles-Ormeaux
(77540) Référence :
CY2432022_3
Prix du projet : Maison avec Terrain
prix 281 000 €
- 5 pièces
- 3 chambres
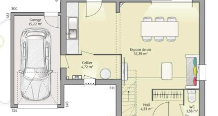
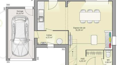
- Surface maison 90 m2
Lumigny-Nesles-Ormeaux : maison de 5 pièces (90 m²) en vente
PROCHE DE MEAUX - MAISON 5 PIÈCES NEUVE
À vendre : à proximité du Transilien P (gare de Marles-en-Brie, 35 min de Paris), à Lumigny-Nesles-Ormeaux (77540), notre agence Maisons France Confort Magny-le-Hongre est ravie de vous proposer cette maison de 5 pièces de 90 m² et de 465 m² de terrain. Son intérieur se divise en trois chambres, une cuisine et une salle de bains.
Il s'agit d'une maison de 2 niveaux. Elle est neuve.
Il y a l'École Maternelle les Ecureuils et l'École Primaire du Ru de la Fontaine dans la commune. Niveau transports, on trouve la gare Marles-en-Brie à moins de 10 minutes en voiture. Il y a un commerce et une poissonnerie à proximité du bien.
Elle est proposée à l'achat pour 281 000 €.
Prenez contact avec notre constructeur (Cedric YAHIAOUI : 06-66-57-00-63) pour tout renseignement sur la maison ou sur les démarches à suivre. Concrétisez vos projets immobiliers avec Maisons France Confort Magny-le-Hongre.
Annonce proposée par un Agent Commercial Partenaire.
Mentions légales
Terrain proposé par un partenaire foncier selon disponibilités et autorisation de publicité au prix de 121 000 €. Hors droit d'enregistrement et frais de notaire. Terrain + Maison proposés au prix de 281 000 € (Hors branchements et raccordements, papiers peints, peintures, revêtement de sol dans les chambres. Tarif modifiable sans préavis). Etiquette énergie : A. Différents modèles disponibles pour ce terrain. Assurances et garanties du constructeur (RC professionnelle, décennale, dommage ouvrage, garantie de remboursement de l'acompte, livraison à prix et délai convenu) : https://www.maisons-france-confort.fr/mentions-legales/. HEXAOM Services est enregistré auprès de l'ORIAS en tant que Courtier en financement, Niveau 1, sous le numéro 14001345.Agence Maisons France Confort de Magny-le-Hongre (77700)
- Téléphone :
- 01 84 80 92 96
- Adressse :
- 11 rue de Courtalin
77700 Magny-le-Hongre, France
