Maison neuve à
Lumigny-Nesles-Ormeaux (77540) Référence : IL2492933_13

Prix du projet : Maison avec Terrain

prix 280 000 €

  • 5 pièces
  • 4 chambres
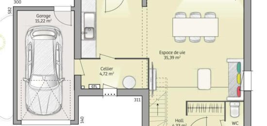
  • Surface maison 101 m2

Lumigny-Nesles-Ormeaux : maison de 5 pièces (101 m²) à vendre
MAISON 5 PIÈCES NEUVE - PROCHE DE MEAUX
Proche du Transilien P (gare de Marles-en-Brie, 35 min de Paris), ayez le coup de coeur pour cette maison de 5 pièces de plain-pied de 101 m² et de 300 m² de terrain à vendre à Lumigny-Nesles-Ormeaux (77540). Son intérieur compte quatre chambres, une cuisine et une salle de bains.
Cette maison est neuve.
L'École Élémentaire du Ru de la Fontaine et l'École Maternelle les Ecureuils sont implantées dans la commune. Côté transports, il y a la gare Marles-en-Brie à moins de 10 minutes en voiture. On trouve une poissonnerie à quelques minutes du bien.
Elle est à vendre pour la somme de 280 000 €.
Contactez Ishane LASLEDJ (tél : 06-68-91-18-74) pour toute question sur la propriété, sur les démarches à suivre ou sur les modalités de vente. Maisons France Confort Mareuil-lès-Meaux est là pour vous accompagner dans tous vos projets immobiliers.

Annonce proposée par un Agent Commercial Partenaire.

Mentions légales

Terrain proposé par un partenaire foncier selon disponibilités et autorisation de publicité au prix de 110 000 €. Hors droit d'enregistrement et frais de notaire. Terrain + Maison proposés au prix de 280 000 € (Hors branchements et raccordements, papiers peints, peintures, revêtement de sol dans les chambres. Tarif modifiable sans préavis). Etiquette énergie : A. Différents modèles disponibles pour ce terrain. Assurances et garanties du constructeur (RC professionnelle, décennale, dommage ouvrage, garantie de remboursement de l'acompte, livraison à prix et délai convenu) : https://www.maisons-france-confort.fr/mentions-legales/. HEXAOM Services est enregistré auprès de l'ORIAS en tant que Courtier en financement, Niveau 1, sous le numéro 14001345.

Contactez l'agence de Mareuil-lès-Meaux

01 60 09 28 30

    * Champs obligatoires

    Vos informations sont traitées par HEXAOM et transmises à un conseiller commercial qui vous contactera afin de répondre à votre demande. Les plans et images présentés sur notre site sont la propriété d’HEXAOM et ne peuvent pas être reproduits sans son accord. Pour retrouver notre politique de protection des données personnelles et exercer vos droits conformément à la « loi informatique et liberté » cliquez-ici.