Maison neuve à
Machemont (60150) Référence : XDSS2411731_2

Prix du projet : Maison avec Terrain

prix 245 000 €

  • 5 pièces
  • 3 chambres
  • Surface maison 90 m2

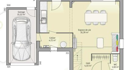
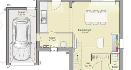
VENTE : maison T5 (90 m²) à Machemont
IDÉALEMENT SITUÉE - MAISON 5 PIÈCES NEUVE
À vendre à quelques kilomètres de Compiègne, découvrez cette maison de 5 pièces de 90 m² idéalement située dans Machemont (60150).
Il s'agit d'une maison de 2 niveaux. Son intérieur propose trois chambres, une cuisine et une salle de bains. La maison est neuve.
Le terrain de la propriété est de 581 m².
Ce bien se trouve dans un secteur attractif. Il y a l'École Primaire Georges Lemoine à moins de 10 minutes à pied. Niveau transports, on trouve cinq gares à moins de 10 minutes en voiture. Il y a un accès à la nationale N31 à 7 km.
Son prix de vente est de 245 000 €.
Prenez contact avec notre agence (DOS SANTOS Xavier : 06-16-27-53-27) pour tout renseignement sur la maison.

Mentions légales

Terrain proposé par un partenaire foncier selon disponibilités et autorisation de publicité au prix de 40 000 €. Hors droit d'enregistrement et frais de notaire. Terrain + Maison proposés au prix de 245 000 € (Hors branchements et raccordements, papiers peints, peintures, revêtement de sol dans les chambres. Tarif modifiable sans préavis). Etiquette énergie : A. Différents modèles disponibles pour ce terrain. Assurances et garanties du constructeur (RC professionnelle, décennale, dommage ouvrage, garantie de remboursement de l'acompte, livraison à prix et délai convenu) : https://www.maisons-france-confort.fr/mentions-legales/. HEXAOM Services est enregistré auprès de l'ORIAS en tant que Courtier en financement, Niveau 1, sous le numéro 14001345.

Contactez l'agence de Compiègne

03 44 86 81 34

    * Champs obligatoires

    Vos informations sont traitées par HEXAOM et transmises à un conseiller commercial qui vous contactera afin de répondre à votre demande. Les plans et images présentés sur notre site sont la propriété d’HEXAOM et ne peuvent pas être reproduits sans son accord. Pour retrouver notre politique de protection des données personnelles et exercer vos droits conformément à la « loi informatique et liberté » cliquez-ici.