Maison neuve à
Maison-Rouge (77370) Référence : AD2476168_2

Prix du projet : Maison avec Terrain

prix 256 700 €

  • 5 pièces
  • 3 chambres
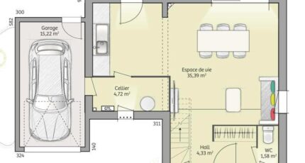
  • Surface maison 90 m2

VENTE : maison de 5 pièces (90 m²) à Maison-Rouge
EMPLACEMENT PRIVILÉGIÉ - MAISON 5 PIÈCES NEUVE
À vendre : au pied du Transilien P (gare de Sainte-Colombe Septveilles, 1 h de Paris), nous sommes ravis de vous présenter cette maison de 5 pièces de 90 m² bénéficiant d'un emplacement privilégié dans Maison-Rouge (77370). Elle dispose de trois chambres, d'une cuisine et d'une salle de bains.
Le terrain de cette maison s'étend sur 883 m².
Il s'agit d'une maison de 2 niveaux. Elle est neuve.
La maison est située dans un secteur attractif. Une école primaire y est implantée. Côté transports, il y a les gares Sainte-Colombe Septveilles et Longueville à moins de 10 minutes en voiture. On trouve un tennis et une épicerie à proximité du bien.
Son prix de vente est de 256 700 €.
Contactez notre agence (DELOHEN Anne : 06-30-93-26-67) pour toute information sur la maison. Maisons France Confort Nemours vous accompagne à toutes les étapes de votre projet et dans toutes vos démarches.

Annonce proposée par un Agent Commercial Partenaire.

Mentions légales

Terrain proposé par un partenaire foncier selon disponibilités et autorisation de publicité au prix de 71 820 €. Hors droit d'enregistrement et frais de notaire. Terrain + Maison proposés au prix de 256 700 € (Hors branchements et raccordements, papiers peints, peintures, revêtement de sol dans les chambres. Tarif modifiable sans préavis). Etiquette énergie : A. Différents modèles disponibles pour ce terrain. Assurances et garanties du constructeur (RC professionnelle, décennale, dommage ouvrage, garantie de remboursement de l'acompte, livraison à prix et délai convenu) : https://www.maisons-france-confort.fr/mentions-legales/. HEXAOM Services est enregistré auprès de l'ORIAS en tant que Courtier en financement, Niveau 1, sous le numéro 14001345.

Contactez l'agence de Nemours

01 64 28 58 32

    * Champs obligatoires

    Vos informations sont traitées par HEXAOM et transmises à un conseiller commercial qui vous contactera afin de répondre à votre demande. Les plans et images présentés sur notre site sont la propriété d’HEXAOM et ne peuvent pas être reproduits sans son accord. Pour retrouver notre politique de protection des données personnelles et exercer vos droits conformément à la « loi informatique et liberté » cliquez-ici.