Maison neuve à
Marcilly (77139) Référence : DC2444069_1

Prix du projet : Maison avec Terrain

prix 316 000 €

  • 6 pièces
  • 4 chambres
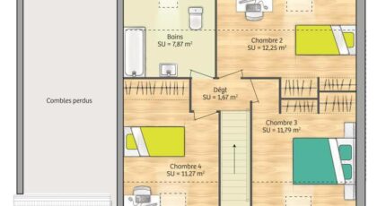
  • Surface maison 89 m2

Maison F6 (89 m²) à vendre à Marcilly
MAISON 6 PIÈCES NEUVE - PROCHE D'AULNAY-SOUS-BOIS
À côté de la gare de Meaux (Paris à 25 min par le Transilien P), votre agence Maisons France Confort Melun est heureuse de vous proposer cette maison de 6 pièces de 89 m² à Marcilly (77139).
C'est une maison de 2 niveaux. Elle comporte quatre chambres, une cuisine et une salle de bains. Cette maison est neuve.
Le terrain du bien s'étend sur 420 m².
Il y a une école élémentaire dans le quartier. Niveau transports en commun, on trouve la gare Meaux à moins de 10 minutes en voiture.
Il est proposé à l'achat pour 316 000 €.
Contactez votre commercial réf F.J (tél : 01-64-14-43-30) pour toute question sur la maison ou sur les modalités de vente. Concrétisez vos projets immobiliers avec Maisons France Confort Melun.

Annonce proposée par un Agent Commercial Partenaire.

Mentions légales

Terrain proposé par un partenaire foncier selon disponibilités et autorisation de publicité au prix de 95 000 €. Hors droit d'enregistrement et frais de notaire. Terrain + Maison proposés au prix de 316 000 € (Hors branchements et raccordements, papiers peints, peintures, revêtement de sol dans les chambres. Tarif modifiable sans préavis). Etiquette énergie : A. Différents modèles disponibles pour ce terrain. Assurances et garanties du constructeur (RC professionnelle, décennale, dommage ouvrage, garantie de remboursement de l'acompte, livraison à prix et délai convenu) : https://www.maisons-france-confort.fr/mentions-legales/. HEXAOM Services est enregistré auprès de l'ORIAS en tant que Courtier en financement, Niveau 1, sous le numéro 14001345.

Contactez l'agence de Melun

01 64 14 43 20

    * Champs obligatoires

    Vos informations sont traitées par HEXAOM et transmises à un conseiller commercial qui vous contactera afin de répondre à votre demande. Les plans et images présentés sur notre site sont la propriété d’HEXAOM et ne peuvent pas être reproduits sans son accord. Pour retrouver notre politique de protection des données personnelles et exercer vos droits conformément à la « loi informatique et liberté » cliquez-ici.