Maison neuve à
Mareuil-lès-Meaux (77100) Référence : CY2465364_1

Prix du projet : Maison avec Terrain

prix 319 000 €

  • 5 pièces
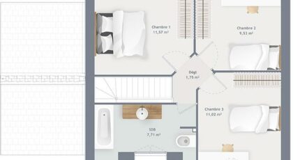
  • 3 chambres
  • Surface maison 80 m2

Mareuil-lès-Meaux : maison T5 (80 m²) à vendre
IDÉALEMENT SITUÉE - MAISON 5 PIÈCES NEUVE
À vendre : à deux pas de la gare de Meaux (Paris à 25 min avec le Transilien P), idéalement située dans Mareuil-lès-Meaux (77100), notre agence Maisons France Confort Mareuil-lès-Meaux est ravie de vous proposer cette maison de 5 pièces de 80 m² et de 302 m² de terrain. Elle offre trois chambres, une cuisine et une salle de bains.
Il s'agit d'une maison de 2 niveaux. Elle est neuve.
La maison se trouve dans un secteur attractif. L'École Élémentaire les Hirondelles et l'École Maternelle la Marelle sont implantées à moins de 10 minutes à pied. Côté transports, on trouve la station de RER Chessy-Marne-La-Vallée (ligne A) ainsi que huit gares à moins de 10 minutes en voiture. Il y a un tennis et deux commerces à quelques minutes.
Elle est proposée à l'achat pour 319 000 €.
N'hésitez pas à prendre contact avec notre agence (Cedric YAHIAOUI : 06-66-57-00-63) pour toute question sur la maison, sur les démarches à suivre ou sur les modalités de vente. Maisons France Confort Mareuil-lès-Meaux est là pour vous accompagner à toutes les étapes de l'achat.

Annonce proposée par un Agent Commercial Partenaire.

Mentions légales

Terrain proposé par un partenaire foncier selon disponibilités et autorisation de publicité au prix de 129 000 €. Hors droit d'enregistrement et frais de notaire. Terrain + Maison proposés au prix de 319 000 € (Hors branchements et raccordements, papiers peints, peintures, revêtement de sol dans les chambres. Tarif modifiable sans préavis). Etiquette énergie : A. Différents modèles disponibles pour ce terrain. Assurances et garanties du constructeur (RC professionnelle, décennale, dommage ouvrage, garantie de remboursement de l'acompte, livraison à prix et délai convenu) : https://www.maisons-france-confort.fr/mentions-legales/. HEXAOM Services est enregistré auprès de l'ORIAS en tant que Courtier en financement, Niveau 1, sous le numéro 14001345.

Contactez l'agence de Mareuil-lès-Meaux

01 60 09 28 30

    * Champs obligatoires

    Vos informations sont traitées par HEXAOM et transmises à un conseiller commercial qui vous contactera afin de répondre à votre demande. Les plans et images présentés sur notre site sont la propriété d’HEXAOM et ne peuvent pas être reproduits sans son accord. Pour retrouver notre politique de protection des données personnelles et exercer vos droits conformément à la « loi informatique et liberté » cliquez-ici.