Maison neuve à
Marines (95640) Référence : CY2400520_2

Prix du projet : Maison avec Terrain

prix 233 440 €

  • 5 pièces
  • 3 chambres
  • Surface maison 90 m2

Marines : maison de 5 pièces (90 m²) à vendre
IDÉALEMENT SITUÉE - MAISON 5 PIÈCES NEUVE
À vendre : proche du Transilien J (gare de Santeuil-Le Perchay, 55 min de Paris), notre agence Maisons France Confort Mareuil-lès-Meaux est heureuse de vous présenter cette maison de 5 pièces de 90 m² idéalement située dans Marines (95640).
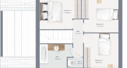
Cette maison possède 2 niveaux. Son intérieur se divise en trois chambres, une cuisine et une salle de bains. Cette maison est neuve.
Le terrain du bien s'étend sur 516 m².
La maison se trouve dans un secteur prisé. L'École Élémentaire Paul Cézanne, l'École Maternelle les Murgers et le Collège des Hautiers sont implantés à moins de 10 minutes à pied. Niveau transports en commun, il y a six gares à moins de 10 minutes en voiture. On trouve une bibliothèque, des commerces, deux boulangeries, un supermarché, un bureau de poste et deux épiceries dans les environs.
Elle est proposée à l'achat pour 233 440 €.
Prenez contact avec notre agence (YAHIAOUI Cedric : 06-66-57-00-63) pour toute question sur la maison. Faites de vos projets immobiliers une réalité avec Maisons France Confort Mareuil-lès-Meaux.

Annonce proposée par un Agent Commercial Partenaire.

Mentions légales

Terrain proposé par un partenaire foncier selon disponibilités et autorisation de publicité au prix de 146 000 €. Hors droit d'enregistrement et frais de notaire. Terrain + Maison proposés au prix de 233 440 € (Hors branchements et raccordements, papiers peints, peintures, revêtement de sol dans les chambres. Tarif modifiable sans préavis). Etiquette énergie : A. Différents modèles disponibles pour ce terrain. Assurances et garanties du constructeur (RC professionnelle, décennale, dommage ouvrage, garantie de remboursement de l'acompte, livraison à prix et délai convenu) : https://www.maisons-france-confort.fr/mentions-legales/. HEXAOM Services est enregistré auprès de l'ORIAS en tant que Courtier en financement, Niveau 1, sous le numéro 14001345.

Contactez l'agence de Mareuil-lès-Meaux

01 60 09 28 30

    * Champs obligatoires

    Vos informations sont traitées par HEXAOM et transmises à un conseiller commercial qui vous contactera afin de répondre à votre demande. Les plans et images présentés sur notre site sont la propriété d’HEXAOM et ne peuvent pas être reproduits sans son accord. Pour retrouver notre politique de protection des données personnelles et exercer vos droits conformément à la « loi informatique et liberté » cliquez-ici.