Maison neuve à
Marines (95640) Référence : CY2433668_1

Prix du projet : Maison avec Terrain

prix 299 000 €

  • 5 pièces
  • 3 chambres
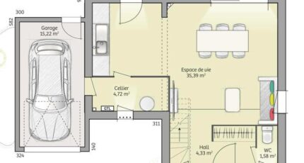
  • Surface maison 90 m2

VENTE d'une maison T5 (90 m²) à Marines
MAISON 5 PIÈCES NEUVE - PROCHE D'ARGENTEUIL
À quelques minutes de la gare de Santeuil-Le Perchay (Paris à 55 min avec le Transilien J), nous vous proposons cette maison de 5 pièces de 90 m² à Marines (95640).
C'est une maison de 2 niveaux. Son intérieur compte trois chambres, une cuisine et une salle de bains. Cette maison est neuve.
Le terrain de la propriété s'étend sur 250 m².
Il y a l'École Élémentaire Paul Cézanne, l'École Maternelle les Murgers et le Collège des Hautiers à moins de 10 minutes à pied. Niveau transports en commun, on trouve six gares à moins de 10 minutes en voiture. Il y a une bibliothèque, des commerces, deux boulangeries, un supermarché, une boucherie-charcuterie et un bureau de poste à proximité du bien.
Elle est proposée à l'achat pour 299 000 €.
Prenez contact avec notre agence (YAHIAOUI Cedric : 06-66-57-00-63) pour plus d'informations sur la propriété, sur les modalités de vente ou sur les démarches à suivre. Maisons France Confort Magny-le-Hongre est là pour vous accompagner dans tous vos projets immobiliers.

Annonce proposée par un Agent Commercial Partenaire.

Mentions légales

Terrain proposé par un partenaire foncier selon disponibilités et autorisation de publicité au prix de 139 000 €. Hors droit d'enregistrement et frais de notaire. Terrain + Maison proposés au prix de 299 000 € (Hors branchements et raccordements, papiers peints, peintures, revêtement de sol dans les chambres. Tarif modifiable sans préavis). Etiquette énergie : A. Différents modèles disponibles pour ce terrain. Assurances et garanties du constructeur (RC professionnelle, décennale, dommage ouvrage, garantie de remboursement de l'acompte, livraison à prix et délai convenu) : https://www.maisons-france-confort.fr/mentions-legales/. HEXAOM Services est enregistré auprès de l'ORIAS en tant que Courtier en financement, Niveau 1, sous le numéro 14001345.

Contactez l'agence de Magny-le-Hongre

01 84 80 92 96

    * Champs obligatoires

    Vos informations sont traitées par HEXAOM et transmises à un conseiller commercial qui vous contactera afin de répondre à votre demande. Les plans et images présentés sur notre site sont la propriété d’HEXAOM et ne peuvent pas être reproduits sans son accord. Pour retrouver notre politique de protection des données personnelles et exercer vos droits conformément à la « loi informatique et liberté » cliquez-ici.