Maison neuve à
Marmande
(47200) Référence :
AL2473065_2
Prix du projet : Maison avec Terrain
prix 308 000 €
- 7 pièces
- 4 chambres
- Surface maison 146 m2
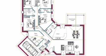
VENTE : maison de 7 pièces (146 m²) à Marmande
EMPLACEMENT PRIVILÉGIÉ - MAISON 7 PIÈCES NEUVE
Notre agence Maisons de la Côte Atlantique Marmande est ravie de vous présenter cette maison de 7 pièces de plain-pied de 146 m² en vente, bénéficiant d'un emplacement privilégié dans Marmande (47200). Elle se divise en quatre chambres, une cuisine et deux salles de bains.
Le terrain de la maison s'étend sur 860 m².
Cette maison est neuve.
Ce bien est situé dans un secteur convoité. On trouve des écoles de tous niveaux à moins de 10 minutes à pied, tout comme une structure d'accueil pour les enfants en bas âge. Côté transports, il y a la gare Marmande à proximité. Il y a un accès à l'autoroute A62 à 8 km. On trouve un tennis, un bassin de natation, des boulangeries, des commerces, une poissonnerie, un bureau de poste et quatre épiceries dans les environs.
Il est proposé à l'achat pour 308 000 €.
N'hésitez pas à prendre contact avec Alexandra LAGARDERE pour plus de renseignements sur la maison ou sur les modalités de vente. Donnez vie à vos projets immobiliers avec Maisons de la Côte Atlantique Marmande.
Mentions légales
Idée de réalisation en modèle prêt à décorer sur l'un de nos terrains partenaires, sous réserve de disponibilités. Voir détails en agence.Agence Maisons de la Côte Atlantique de Marmande (47200)
- Téléphone :
- 05 53 84 47 83
- Adressse :
- Route de Bordeaux
47200 Marmande, France
