Maison neuve à
Marolles-sur-Seine
(77130) Référence :
CY2434967_1
Prix du projet : Maison avec Terrain
prix 253 000 €
- 5 pièces
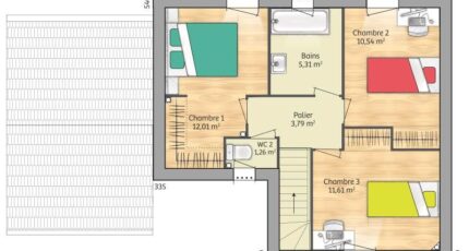
- 3 chambres
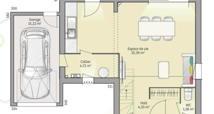
- Surface maison 90 m2
Marolles-sur-Seine : maison F5 (90 m²) en vente
MAISON 5 PIÈCES NEUVE - PROCHE DE SENS
À vendre : à côté du Transilien R (gare de Montereau, 60 min de Paris), nous vous présentons cette maison de 5 pièces de 90 m² et de 604 m² de terrain à Marolles-sur-Seine (77130).
Il s'agit d'une maison de 2 niveaux. Son intérieur offre trois chambres, une cuisine et une salle de bains. Cette maison est neuve.
Il y a des établissements scolaires primaires à moins de 10 minutes à pied et, comme l'École Maternelle Jean Dumoulin Neuf. Niveau transports en commun, on trouve trois gares (Villeneuve-la-Guyard, Montereau et Champigny sur Yonne) à moins de 10 minutes en voiture. On trouve un tennis, trois commerces, une boulangerie, une boucherie-charcuterie, une épicerie et un bureau de poste dans les environs.
Elle est à vendre pour la somme de 253 000 €.
Prenez contact avec Cedric YAHIAOUI (tél : 06-66-57-00-63) pour obtenir de plus amples informations sur la maison, sur les démarches à suivre ou sur les modalités de vente. Maisons France Confort Magny-le-Hongre vous accompagne dans tous vos projets immobiliers et à toutes les étapes de votre projet.
Annonce proposée par un Agent Commercial Partenaire.
Mentions légales
Terrain proposé par un partenaire foncier selon disponibilités et autorisation de publicité au prix de 93 000 €. Hors droit d'enregistrement et frais de notaire. Terrain + Maison proposés au prix de 253 000 € (Hors branchements et raccordements, papiers peints, peintures, revêtement de sol dans les chambres. Tarif modifiable sans préavis). Etiquette énergie : A. Différents modèles disponibles pour ce terrain. Assurances et garanties du constructeur (RC professionnelle, décennale, dommage ouvrage, garantie de remboursement de l'acompte, livraison à prix et délai convenu) : https://www.maisons-france-confort.fr/mentions-legales/. HEXAOM Services est enregistré auprès de l'ORIAS en tant que Courtier en financement, Niveau 1, sous le numéro 14001345.Agence Maisons France Confort de Magny-le-Hongre (77700)
- Téléphone :
- 01 84 80 92 96
- Adressse :
- 11 rue de Courtalin
77700 Magny-le-Hongre, France
