Maison neuve à
Marolles-sur-Seine
(77130) Référence :
CY2465395_1
Prix du projet : Maison avec Terrain
prix 273 000 €
- 5 pièces
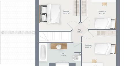
- 3 chambres
- Surface maison 80 m2
Marolles-sur-Seine : maison T5 (80 m²) à vendre
IDÉALEMENT SITUÉE - MAISON 5 PIÈCES NEUVE
En vente : proche du Transilien R (gare de Montereau, 60 min de Paris), découvrez cette maison de 5 pièces de 80 m² idéalement située dans Marolles-sur-Seine (77130). Elle dispose de trois chambres, d'une cuisine et d'une salle de bains.
Le terrain de la propriété est de 440 m².
C'est une maison de 2 niveaux. Elle est neuve.
Cette maison est située dans un quartier prisé. Des écoles maternelles et élémentaires se trouvent à moins de 10 minutes à pied, tout comme dont l'École Maternelle Jean Dumoulin Neuf. Niveau transports, il y a trois gares (Villeneuve-la-Guyard, Montereau et Champigny sur Yonne) à moins de 10 minutes en voiture. Il y a un tennis, un commerce, une épicerie et un bureau de poste dans les environs.
Elle est proposée à l'achat pour 273 000 €.
Contactez notre agence (Cedric YAHIAOUI : 06-66-57-00-63) pour tout renseignement sur la maison. Maisons France Confort Mareuil-lès-Meaux est là pour vous accompagner dans toutes vos démarches.
Annonce proposée par un Agent Commercial Partenaire.
Mentions légales
Terrain proposé par un partenaire foncier selon disponibilités et autorisation de publicité au prix de 83 000 €. Hors droit d'enregistrement et frais de notaire. Terrain + Maison proposés au prix de 273 000 € (Hors branchements et raccordements, papiers peints, peintures, revêtement de sol dans les chambres. Tarif modifiable sans préavis). Etiquette énergie : A. Différents modèles disponibles pour ce terrain. Assurances et garanties du constructeur (RC professionnelle, décennale, dommage ouvrage, garantie de remboursement de l'acompte, livraison à prix et délai convenu) : https://www.maisons-france-confort.fr/mentions-legales/. HEXAOM Services est enregistré auprès de l'ORIAS en tant que Courtier en financement, Niveau 1, sous le numéro 14001345.Agence Maisons France Confort de Mareuil-lès-Meaux (77100)
- Téléphone :
- 01 60 09 28 30
- Adressse :
- Domexpo Est Village La Hayette
77100 Mareuil-lès-Meaux, France
