Maison neuve à
Marolles-sur-Seine (77130) Référence : CY2466068_1

Prix du projet : Maison avec Terrain

prix 267 000 €

  • 5 pièces
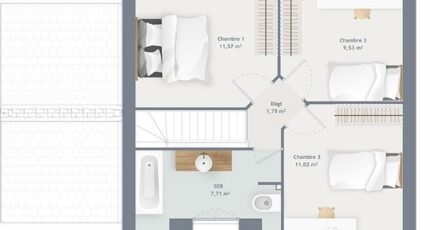
  • 3 chambres
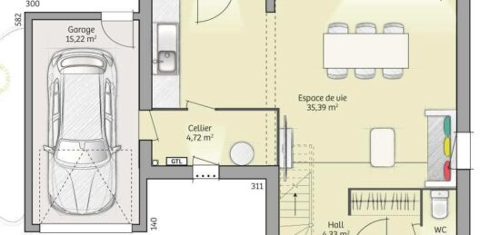
  • Surface maison 80 m2

VENTE d'une maison F5 (80 m²) à Marolles-sur-Seine
IDÉALEMENT SITUÉE - MAISON 5 PIÈCES NEUVE
À vendre : à côté du Transilien R (gare de Montereau, 60 min de Paris), venez découvrir, idéalement située dans Marolles-sur-Seine (77130), cette maison de 5 pièces de 80 m² et de 396 m² de terrain.
C'est une maison de 2 niveaux. Son intérieur dispose de trois chambres, d'une cuisine et d'une salle de bains. Cette maison est neuve.
Le bien se situe dans un secteur convoité. On trouve des écoles maternelles et élémentaires à moins de 10 minutes à pied et dont l'École Maternelle Jean Dumoulin Neuf. Niveau transports en commun, il y a trois gares (Villeneuve-la-Guyard, Montereau et Champigny sur Yonne) à moins de 10 minutes en voiture. Il y a un tennis, un commerce, un bureau de poste et une épicerie dans les environs.
Il est proposé à l'achat pour 267 000 €.
N'hésitez pas à prendre contact avec Cedric YAHIAOUI (tél : 06-66-57-00-63) pour tout renseignement sur la maison ou sur les démarches à suivre.

Annonce proposée par un Agent Commercial Partenaire.

Mentions légales

Terrain proposé par un partenaire foncier selon disponibilités et autorisation de publicité au prix de 77 000 €. Hors droit d'enregistrement et frais de notaire. Terrain + Maison proposés au prix de 267 000 € (Hors branchements et raccordements, papiers peints, peintures, revêtement de sol dans les chambres. Tarif modifiable sans préavis). Etiquette énergie : A. Différents modèles disponibles pour ce terrain. Assurances et garanties du constructeur (RC professionnelle, décennale, dommage ouvrage, garantie de remboursement de l'acompte, livraison à prix et délai convenu) : https://www.maisons-france-confort.fr/mentions-legales/. HEXAOM Services est enregistré auprès de l'ORIAS en tant que Courtier en financement, Niveau 1, sous le numéro 14001345.

Contactez l'agence de Mareuil-lès-Meaux

01 60 09 28 30

    * Champs obligatoires

    Vos informations sont traitées par HEXAOM et transmises à un conseiller commercial qui vous contactera afin de répondre à votre demande. Les plans et images présentés sur notre site sont la propriété d’HEXAOM et ne peuvent pas être reproduits sans son accord. Pour retrouver notre politique de protection des données personnelles et exercer vos droits conformément à la « loi informatique et liberté » cliquez-ici.