Maison neuve à
Marolles-sur-Seine (77130) Référence : CY2466092_1

Prix du projet : Maison avec Terrain

prix 272 000 €

  • 5 pièces
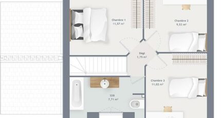
  • 3 chambres
  • Surface maison 80 m2

VENTE d'une maison de 5 pièces (80 m²) à Marolles-sur-Seine
IDÉALEMENT SITUÉE - MAISON 5 PIÈCES NEUVE
À vendre : proche du Transilien R (gare de Montereau, 60 min de Paris), Maisons France Confort Mareuil-lès-Meaux vous présente cette maison de 5 pièces de 80 m² idéalement située dans Marolles-sur-Seine (77130).
Cette maison possède 2 niveaux. Son intérieur comporte trois chambres, une cuisine et une salle de bains. Cette maison est neuve.
Le terrain du bien s'étend sur 470 m².
La maison se situe dans un quartier prisé. Des écoles primaires sont implantées à moins de 10 minutes à pied, tout comme, comme l'École Maternelle Jean Dumoulin Neuf. Niveau transports, il y a les gares Villeneuve-la-Guyard, Montereau et Champigny sur Yonne à moins de 10 minutes en voiture. On trouve un tennis, un commerce, une épicerie et un bureau de poste à quelques minutes.
Elle est à vendre pour la somme de 272 000 €.
Prenez contact avec Cedric YAHIAOUI (06-66-57-00-63) pour toute information sur la maison. Maisons France Confort Mareuil-lès-Meaux est là pour vous accompagner à toutes les étapes de votre projet.

Annonce proposée par un Agent Commercial Partenaire.

Mentions légales

Terrain proposé par un partenaire foncier selon disponibilités et autorisation de publicité au prix de 82 000 €. Hors droit d'enregistrement et frais de notaire. Terrain + Maison proposés au prix de 272 000 € (Hors branchements et raccordements, papiers peints, peintures, revêtement de sol dans les chambres. Tarif modifiable sans préavis). Etiquette énergie : A. Différents modèles disponibles pour ce terrain. Assurances et garanties du constructeur (RC professionnelle, décennale, dommage ouvrage, garantie de remboursement de l'acompte, livraison à prix et délai convenu) : https://www.maisons-france-confort.fr/mentions-legales/. HEXAOM Services est enregistré auprès de l'ORIAS en tant que Courtier en financement, Niveau 1, sous le numéro 14001345.

Contactez l'agence de Mareuil-lès-Meaux

01 60 09 28 30

    * Champs obligatoires

    Vos informations sont traitées par HEXAOM et transmises à un conseiller commercial qui vous contactera afin de répondre à votre demande. Les plans et images présentés sur notre site sont la propriété d’HEXAOM et ne peuvent pas être reproduits sans son accord. Pour retrouver notre politique de protection des données personnelles et exercer vos droits conformément à la « loi informatique et liberté » cliquez-ici.