Maison neuve à 
  Meaux
 (77100)  Référence :
 CY2320679_2 
Prix du projet : Maison avec Terrain
prix 355 000 €
- 5 pièces
- 3 chambres
- Surface maison 90 m2
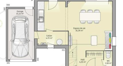
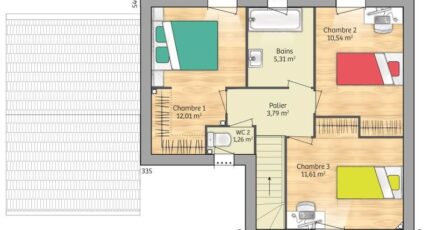
Maison de 5 pièces (90 m²) en vente à Meaux
IDÉALEMENT SITUÉE - MAISON 5 PIÈCES NEUVE
À deux pas du Transilien P (25 min de Paris), Maisons France Confort Magny-le-Hongre vous propose cette maison de 5 pièces de 90 m² en vente idéalement située dans Meaux (77100). Elle compte trois chambres, une cuisine et une salle de bains.
Le terrain de cette maison s'étend sur 565 m².
Il s'agit d'une maison de 2 niveaux. Elle est neuve.
La maison se trouve dans un quartier convoité. Il y a des établissements scolaires de tous types à moins de 10 minutes à pied, tout comme une crèche. Niveau transports en commun, on trouve sept gares à moins de 10 minutes en voiture. Il y a un bassin de natation, un tennis, une bibliothèque, des commerces, trois supermarchés, des boulangeries, quatre épiceries et un bureau de poste à proximité du bien. 2 marchés animent les environs.
Elle est proposée à l'achat pour 355 000 €.
Prenez contact avec Cedric YAHIAOUI (06-66-57-00-63) pour toute information sur la maison. Maisons France Confort Magny-le-Hongre est là pour vous accompagner à toutes les étapes de votre projet.
Annonce proposée par un Agent Commercial Partenaire.
Mentions légales
Terrain proposé par un partenaire foncier selon disponibilités et autorisation de publicité au prix de 180 000 €. Hors droit d'enregistrement et frais de notaire. Maison proposée, avec un contrat de construction de maison individuelle, dans le cadre de la loi du 19/12/1990, au prix de 175 000 € (Hors branchements et raccordements, papiers peints, peintures, revêtement de sol dans les chambres, qui sont chiffrés dans les travaux qui restent à charge du client. Tarif modifiable sans préavis). Étiquette énergie : A. Différents modèles disponibles pour ce terrain. Assurances et garanties du constructeur comprises (RC professionnelle, décennale, dommage ouvrage).Agence Maisons France Confort de Magny-le-Hongre (77700)
- Téléphone :
- 01 84 80 92 96
- Adressse :
-  11 rue de Courtalin
 77700 Magny-le-Hongre, France
 
  
  
  
  
  
 