Maison neuve à
Meaux
(77100) Référence :
IL2409055_2
Prix du projet : Maison avec Terrain
prix 342 000 €
- 5 pièces
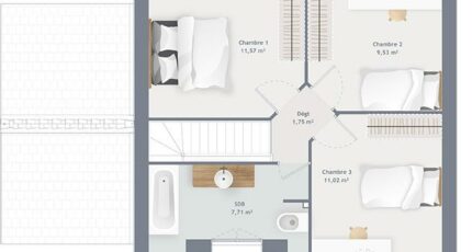
- 3 chambres
- Surface maison 80 m2
Nanteuil-lès-Meaux : maison de 5 pièces (80 m²) à vendre
MAISON 5 PIÈCES NEUVE - PROCHE D'AULNAY-SOUS-BOIS
En vente : proche du Transilien P (gare de Meaux, 25 min de Paris), à Nanteuil-lès-Meaux (77100), nous sommes heureux de vous présenter cette maison de 5 pièces de 80 m².
Cette maison compte 2 niveaux. Son intérieur est composé de trois chambres, d'une cuisine et d'une salle de bains. La maison est neuve.
Le terrain du bien est de 544 m².
Il y a des écoles maternelles et élémentaires à moins de 10 minutes à pied. Niveau transports, on trouve huit gares à moins de 10 minutes en voiture. On trouve une bibliothèque, trois commerces, deux boulangeries, une épicerie et un bureau de poste à proximité du logement.
Elle est proposée à l'achat pour 342 000 €.
N'hésitez pas à prendre contact avec Ishane LASLEDJ (06-68-91-18-74) pour tout renseignement sur la maison ou sur les modalités de vente. Faites de vos projets immobiliers une réalité avec Maisons France Confort Mareuil-lès-Meaux.
Annonce proposée par un Agent Commercial Partenaire.
Mentions légales
Terrain proposé par un partenaire foncier selon disponibilités et autorisation de publicité au prix de 122 000 €. Hors droit d'enregistrement et frais de notaire. Terrain + Maison proposés au prix de 342 000 € (Hors branchements et raccordements, papiers peints, peintures, revêtement de sol dans les chambres. Tarif modifiable sans préavis). Etiquette énergie : A. Différents modèles disponibles pour ce terrain. Assurances et garanties du constructeur (RC professionnelle, décennale, dommage ouvrage, garantie de remboursement de l'acompte, livraison à prix et délai convenu) : https://www.maisons-france-confort.fr/mentions-legales/. HEXAOM Services est enregistré auprès de l'ORIAS en tant que Courtier en financement, Niveau 1, sous le numéro 14001345.Agence Maisons France Confort de Mareuil-lès-Meaux (77100)
- Téléphone :
- 01 60 09 28 30
- Adressse :
- Domexpo Est Village La Hayette
77100 Mareuil-lès-Meaux, France