Maison neuve à
Meaux (77100) Référence : CY2425332_1

Prix du projet : Maison avec Terrain

prix 280 000 €

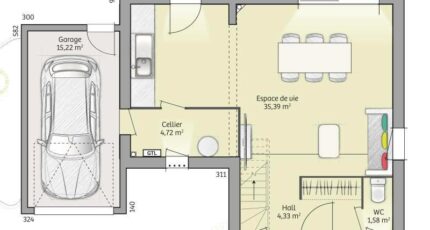
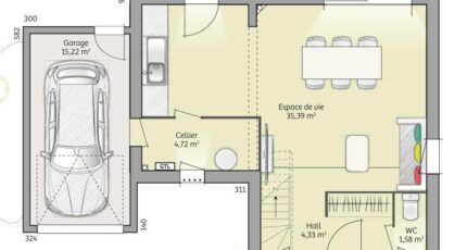
  • 5 pièces
  • 3 chambres
  • Surface maison 90 m2

Meaux : maison T5 (90 m²) à vendre
MAISON 5 PIÈCES NEUVE
Au pied de la gare (Paris à 25 min avec le Transilien P), nous sommes heureux de vous présenter à vendre à Meaux (77100), cette maison de 5 pièces de 90 m². Son intérieur dispose de trois chambres, d'une cuisine et d'une salle de bains.
Le terrain du bien s'étend sur 172 m².
Cette maison compte 2 niveaux. Elle est neuve.
Il y a des écoles de tous niveaux (de la maternelle au lycée) à moins de 10 minutes à pied, tout comme une structure d'accueil pour la petite enfance. Côté transports en commun, on trouve sept gares à moins de 10 minutes en voiture. Il y a un bassin de natation, un tennis, une bibliothèque, des commerces, trois supermarchés, des boulangeries, un bureau de poste et quatre épiceries à proximité. 2 marchés animent les environs.
Son prix de vente est de 280 000 €.
Prenez contact avec notre agence (YAHIAOUI Cedric : 06-66-57-00-63) pour toute information sur cette maison.

Annonce proposée par un Agent Commercial Partenaire.

Mentions légales

Terrain proposé par un partenaire foncier selon disponibilités et autorisation de publicité au prix de 98 000 €. Hors droit d'enregistrement et frais de notaire. Terrain + Maison proposés au prix de 280 000 € (Hors branchements et raccordements, papiers peints, peintures, revêtement de sol dans les chambres. Tarif modifiable sans préavis). Etiquette énergie : A. Différents modèles disponibles pour ce terrain. Assurances et garanties du constructeur (RC professionnelle, décennale, dommage ouvrage, garantie de remboursement de l'acompte, livraison à prix et délai convenu) : https://www.maisons-france-confort.fr/mentions-legales/. HEXAOM Services est enregistré auprès de l'ORIAS en tant que Courtier en financement, Niveau 1, sous le numéro 14001345.

Contactez l'agence de Magny-le-Hongre

01 84 80 92 96

    * Champs obligatoires

    Vos informations sont traitées par HEXAOM et transmises à un conseiller commercial qui vous contactera afin de répondre à votre demande. Les plans et images présentés sur notre site sont la propriété d’HEXAOM et ne peuvent pas être reproduits sans son accord. Pour retrouver notre politique de protection des données personnelles et exercer vos droits conformément à la « loi informatique et liberté » cliquez-ici.