Maison neuve à
Meaux
(77100) Référence :
CY2425332_3
Prix du projet : Maison avec Terrain
prix 280 000 €
- 5 pièces
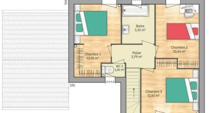
- 3 chambres
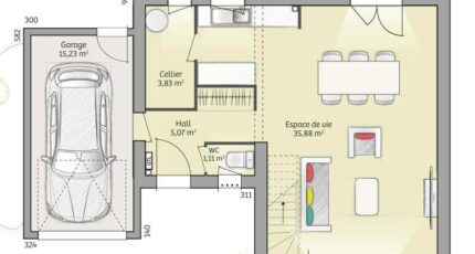
- Surface maison 90 m2
Meaux : maison de 5 pièces (90 m²) à vendre
MAISON 5 PIÈCES NEUVE
En vente : à proximité du Transilien P (25 min de Paris), Maisons France Confort Magny-le-Hongre vous propose cette maison de 5 pièces de 90 m² et de 172 m² de terrain à Meaux (77100).
Cette maison compte 2 niveaux. Elle compte trois chambres, une cuisine et une salle de bains. Cette maison est neuve.
Il y a tous les types d'écoles (de la maternelle au lycée) à moins de 10 minutes à pied, tout comme une crèche. Côté transports, on trouve sept gares à moins de 10 minutes en voiture. Il y a un bassin de natation, un tennis, une bibliothèque, des commerces, trois supermarchés, des boulangeries, un bureau de poste et des boucheries-charcuteries à proximité de la maison. 2 marchés animent les environs.
Elle est à vendre pour la somme de 280 000 €.
N'hésitez pas à prendre contact avec Cedric YAHIAOUI (tél : 06-66-57-00-63) pour toute question sur la maison.
Annonce proposée par un Agent Commercial Partenaire.
Mentions légales
Terrain proposé par un partenaire foncier selon disponibilités et autorisation de publicité au prix de 98 000 €. Hors droit d'enregistrement et frais de notaire. Terrain + Maison proposés au prix de 280 000 € (Hors branchements et raccordements, papiers peints, peintures, revêtement de sol dans les chambres. Tarif modifiable sans préavis). Etiquette énergie : A. Différents modèles disponibles pour ce terrain. Assurances et garanties du constructeur (RC professionnelle, décennale, dommage ouvrage, garantie de remboursement de l'acompte, livraison à prix et délai convenu) : https://www.maisons-france-confort.fr/mentions-legales/. HEXAOM Services est enregistré auprès de l'ORIAS en tant que Courtier en financement, Niveau 1, sous le numéro 14001345.Agence Maisons France Confort de Magny-le-Hongre (77700)
- Téléphone :
- 01 84 80 92 96
- Adressse :
- 11 rue de Courtalin
77700 Magny-le-Hongre, France
