Maison neuve à
Meaux
(77100) Référence :
FS2456134_1
Prix du projet : Maison avec Terrain
prix 334 000 €
- 5 pièces
- 3 chambres
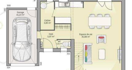
- Surface maison 90 m2
VENTE d'une maison F5 (90 m²) à Meaux
QUARTIER RECHERCHÉ - MAISON 5 PIÈCES NEUVE
À côté du Transilien P (25 min de Paris), laissez vous charmer par cette maison de 5 pièces de 90 m² et de 620 m² de terrain à vendre dans un quartier convoité de Meaux (77100).
Il s'agit d'une maison de 2 niveaux. Elle propose trois chambres, une cuisine et une salle de bains. Cette maison est neuve.
La maison se situe dans un secteur recherché. Il y a des établissements scolaires du primaire et du secondaire à moins de 10 minutes à pied, tout comme une structure d'accueil pour les enfants en bas âge. Niveau transports en commun, on trouve sept gares à moins de 10 minutes en voiture. Il y a un bassin de natation, un tennis, une bibliothèque, des commerces, des épiceries et des boucheries-charcuteries à proximité. 2 marchés animent le quartier.
Son prix de vente est de 334 000 €.
N'hésitez pas à prendre contact avec Félix SOUMARMON (tél : 06-10-24-97-84) pour toute question sur la maison, sur les modalités de vente ou sur les démarches à suivre.
Annonce proposée par un Agent Commercial Partenaire.
Mentions légales
Terrain proposé par un partenaire foncier selon disponibilités et autorisation de publicité au prix de 165 000 €. Hors droit d'enregistrement et frais de notaire. Terrain + Maison proposés au prix de 334 000 € (Hors branchements et raccordements, papiers peints, peintures, revêtement de sol dans les chambres. Tarif modifiable sans préavis). Etiquette énergie : A. Différents modèles disponibles pour ce terrain. Assurances et garanties du constructeur (RC professionnelle, décennale, dommage ouvrage, garantie de remboursement de l'acompte, livraison à prix et délai convenu) : https://www.maisons-france-confort.fr/mentions-legales/. HEXAOM Services est enregistré auprès de l'ORIAS en tant que Courtier en financement, Niveau 1, sous le numéro 14001345.Agence Maisons France Confort de Magny-le-Hongre (77700)
- Téléphone :
- 01 84 80 92 96
- Adressse :
- 11 rue de Courtalin
77700 Magny-le-Hongre, France
