Maison neuve à
Meaux (77100) Référence : CY2468499_1

Prix du projet : Maison avec Terrain

prix 335 000 €

  • 5 pièces
  • 3 chambres
  • Surface maison 80 m2

Maison de 5 pièces (80 m²) à vendre à Meaux
IDÉALEMENT SITUÉE - MAISON 5 PIÈCES NEUVE
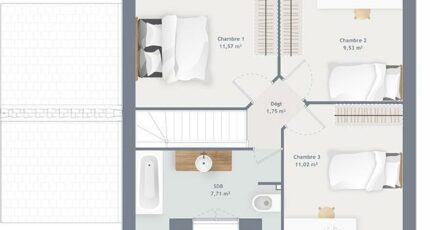
À vendre : proche du Transilien P (25 min de Paris), nous sommes ravis de vous présenter, idéalement située dans Meaux (77100), cette maison de 5 pièces de 80 m² et de 400 m² de terrain.
C'est une maison de 2 niveaux. Son intérieur comporte trois chambres, une cuisine et une salle de bains. La maison est neuve.
La propriété est située dans un quartier recherché. Il y a des écoles de tous types à moins de 10 minutes à pied, tout comme une structure d'accueil pour les enfants en bas âge. Côté transports en commun, on trouve sept gares à moins de 10 minutes en voiture. Il y a un bassin de natation, un tennis, une bibliothèque, des commerces, des épiceries et des boucheries-charcuteries dans les environs. Enfin, 2 marchés animent les environs.
Son prix de vente est de 335 000 €.
Prenez contact avec Mehdi ZOUBIR (tél : 06-27-85-29-98) pour plus d'informations sur la maison. Maisons France Confort Mareuil-lès-Meaux vous accompagne dans toutes vos démarches et à toutes les étapes de l'achat.

Annonce proposée par un Agent Commercial Partenaire.

Mentions légales

Terrain proposé par un partenaire foncier selon disponibilités et autorisation de publicité au prix de 145 000 €. Hors droit d'enregistrement et frais de notaire. Terrain + Maison proposés au prix de 335 000 € (Hors branchements et raccordements, papiers peints, peintures, revêtement de sol dans les chambres. Tarif modifiable sans préavis). Etiquette énergie : A. Différents modèles disponibles pour ce terrain. Assurances et garanties du constructeur (RC professionnelle, décennale, dommage ouvrage, garantie de remboursement de l'acompte, livraison à prix et délai convenu) : https://www.maisons-france-confort.fr/mentions-legales/. HEXAOM Services est enregistré auprès de l'ORIAS en tant que Courtier en financement, Niveau 1, sous le numéro 14001345.

Contactez l'agence de Mareuil-lès-Meaux

01 60 09 28 30

    * Champs obligatoires

    Vos informations sont traitées par HEXAOM et transmises à un conseiller commercial qui vous contactera afin de répondre à votre demande. Les plans et images présentés sur notre site sont la propriété d’HEXAOM et ne peuvent pas être reproduits sans son accord. Pour retrouver notre politique de protection des données personnelles et exercer vos droits conformément à la « loi informatique et liberté » cliquez-ici.