Maison neuve à
Mettray (37390) Référence : MT2380967_1

Prix du projet : Maison avec Terrain

prix 450 000 €

  • 5 pièces
  • 4 chambres
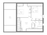
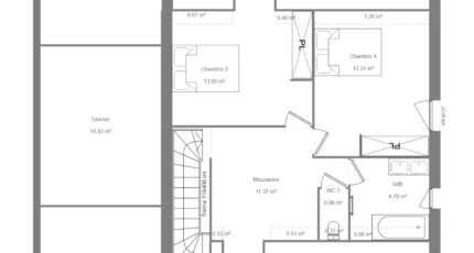
  • Surface maison 130 m2

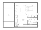
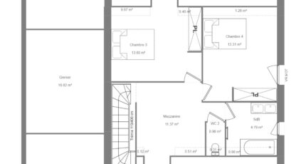
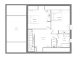
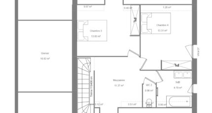
Maison F5 (130 m²) à vendre à Mettray
MAISON 5 PIÈCES NEUVE - PROCHE DE TOURS
À 8 km de Tours, Maisons France Confort Saint-Avertin vous présente à vendre à Mettray (37390), cette maison de 5 pièces de 130 m² et de 550 m² de terrain.
C'est une maison de 2 niveaux. Son intérieur compte quatre chambres, une cuisine et deux salles de bains. Cette maison est neuve.
L'École Primaire Publique Moulin Neuf se trouve à moins de 10 minutes à pied. Niveau transports en commun, il y a six gares à moins de 10 minutes en voiture. L'autoroute A10 est accessible à 7 km. On trouve deux tennis, une boulangerie, deux commerces et une boucherie-charcuterie à quelques minutes de la maison.
Elle est à vendre pour la somme de 450 000 €.
N'hésitez pas à prendre contact avec notre agence (Maxime TERNIER : °6 63 77 59 71) pour toute question sur la propriété ou sur les démarches à suivre.

Mentions légales

Terrain proposé par un partenaire foncier selon disponibilités et autorisation de publicité au prix de 115 000 €. Hors droit d'enregistrement et frais de notaire. Terrain + Maison proposés au prix de 450 000 € (Hors branchements et raccordements, papiers peints, peintures, revêtement de sol dans les chambres. Tarif modifiable sans préavis). Etiquette énergie : A. Différents modèles disponibles pour ce terrain. Assurances et garanties du constructeur (RC professionnelle, décennale, dommage ouvrage, garantie de remboursement de l'acompte, livraison à prix et délai convenu) : https://www.maisons-france-confort.fr/mentions-legales/. HEXAOM Services est enregistré auprès de l'ORIAS en tant que Courtier en financement, Niveau 1, sous le numéro 14001345.

Contactez l'agence de Saint-Avertin

06 27 92 26 92

    * Champs obligatoires

    Vos informations sont traitées par HEXAOM et transmises à un conseiller commercial qui vous contactera afin de répondre à votre demande. Les plans et images présentés sur notre site sont la propriété d’HEXAOM et ne peuvent pas être reproduits sans son accord. Pour retrouver notre politique de protection des données personnelles et exercer vos droits conformément à la « loi informatique et liberté » cliquez-ici.