Maison neuve à
Mézy-sur-Seine
(78250) Référence :
CY2400646_2
Prix du projet : Maison avec Terrain
prix 287 060 €
- 5 pièces
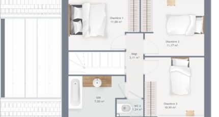
- 3 chambres
- Surface maison 90 m2
VENTE d'une maison de 5 pièces (90 m²) à Mézy-sur-Seine
IDÉALEMENT SITUÉE - MAISON 5 PIÈCES NEUVE
Au pied du Transilien J (gare de Meulan-Hardricourt, 45 min de Paris), votre agence Maisons France Confort Mareuil-lès-Meaux est ravie de vous présenter en vente, idéalement située dans Mézy-sur-Seine (78250), cette maison de 5 pièces de 90 m² et de 718 m² de terrain. Elle est composée de trois chambres, d'une cuisine et d'une salle de bains.
Cette maison compte 2 niveaux. Elle est neuve.
La maison est située dans un quartier prisé. Il y a l'École Primaire les Bergeronnettes à moins de 10 minutes à pied. Côté transports en commun, on trouve 14 gares à moins de 10 minutes en voiture. Il y a un tennis, une bibliothèque et une poissonnerie à quelques minutes de la maison.
Elle est proposée à l'achat pour 287 060 €.
Contactez notre agence (Cedric YAHIAOUI : 06-66-57-00-63) pour obtenir de plus amples renseignements sur la maison, sur les modalités de vente ou sur les démarches à suivre.
Annonce proposée par un Agent Commercial Partenaire.
Mentions légales
Terrain proposé par un partenaire foncier selon disponibilités et autorisation de publicité au prix de 165 000 €. Hors droit d'enregistrement et frais de notaire. Terrain + Maison proposés au prix de 287 060 € (Hors branchements et raccordements, papiers peints, peintures, revêtement de sol dans les chambres. Tarif modifiable sans préavis). Etiquette énergie : A. Différents modèles disponibles pour ce terrain. Assurances et garanties du constructeur (RC professionnelle, décennale, dommage ouvrage, garantie de remboursement de l'acompte, livraison à prix et délai convenu) : https://www.maisons-france-confort.fr/mentions-legales/. HEXAOM Services est enregistré auprès de l'ORIAS en tant que Courtier en financement, Niveau 1, sous le numéro 14001345.Agence Maisons France Confort de Mareuil-lès-Meaux (77100)
- Téléphone :
- 01 60 09 28 30
- Adressse :
- Domexpo Est Village La Hayette
77100 Mareuil-lès-Meaux, France