Maison neuve à
Mézy-sur-Seine (78250) Référence : CY2400679_2

Prix du projet : Maison avec Terrain

prix 226 110 €

  • 5 pièces
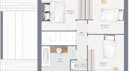
  • 3 chambres
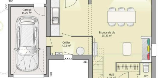
  • Surface maison 90 m2

Mézy-sur-Seine : maison de 5 pièces (90 m²) en vente
IDÉALEMENT SITUÉE - MAISON 5 PIÈCES NEUVE
À vendre : à proximité de la gare de Meulan-Hardricourt (Paris à 45 min avec le Transilien J), nous sommes ravis de vous proposer cette maison de 5 pièces de 90 m² et de 483 m² de terrain idéalement située dans Mézy-sur-Seine (78250). Son intérieur compte trois chambres, une cuisine et une salle de bains.
Cette maison comporte 2 niveaux. Elle est neuve.
La maison se situe dans un secteur attractif. On trouve l'École Primaire les Bergeronnettes à moins de 10 minutes à pied. Niveau transports en commun, il y a 14 gares à moins de 10 minutes en voiture. Il y a un tennis, une bibliothèque et une poissonnerie dans les environs.
Elle est à vendre pour la somme de 226 110 €.
Contactez Cedric YAHIAOUI (06-66-57-00-63) pour obtenir de plus amples informations sur la maison.

Annonce proposée par un Agent Commercial Partenaire.

Mentions légales

Terrain proposé par un partenaire foncier selon disponibilités et autorisation de publicité au prix de 144 000 €. Hors droit d'enregistrement et frais de notaire. Terrain + Maison proposés au prix de 226 110 € (Hors branchements et raccordements, papiers peints, peintures, revêtement de sol dans les chambres. Tarif modifiable sans préavis). Etiquette énergie : A. Différents modèles disponibles pour ce terrain. Assurances et garanties du constructeur (RC professionnelle, décennale, dommage ouvrage, garantie de remboursement de l'acompte, livraison à prix et délai convenu) : https://www.maisons-france-confort.fr/mentions-legales/. HEXAOM Services est enregistré auprès de l'ORIAS en tant que Courtier en financement, Niveau 1, sous le numéro 14001345.

Contactez l'agence de Mareuil-lès-Meaux

01 60 09 28 30

    * Champs obligatoires

    Vos informations sont traitées par HEXAOM et transmises à un conseiller commercial qui vous contactera afin de répondre à votre demande. Les plans et images présentés sur notre site sont la propriété d’HEXAOM et ne peuvent pas être reproduits sans son accord. Pour retrouver notre politique de protection des données personnelles et exercer vos droits conformément à la « loi informatique et liberté » cliquez-ici.