Maison neuve à
Misy-sur-Yonne
(77130) Référence :
CY2430388_1
Prix du projet : Maison avec Terrain
prix 219 000 €
- 5 pièces
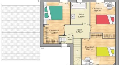
- 3 chambres
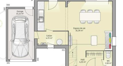
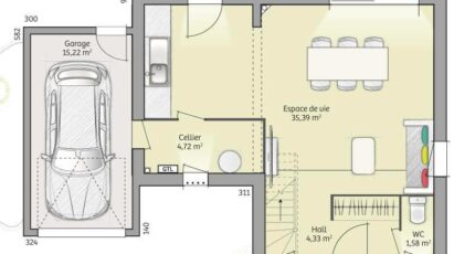
- Surface maison 90 m2
VENTE d'une maison T5 (90 m²) à Misy-sur-Yonne
MAISON 5 PIÈCES NEUVE - PROCHE DE SENS
À vendre : à deux pas de Sens, nous vous proposons cette maison de 5 pièces de 90 m² et de 660 m² de terrain à Misy-sur-Yonne (77130).
C'est une maison de 2 niveaux. Elle offre trois chambres, une cuisine et une salle de bains. La maison est neuve.
L'École Élémentaire les Hirondelles est implantée à moins de 10 minutes à pied. Côté transports en commun, il y a les gares Villeneuve-la-Guyard et Champigny sur Yonne à moins de 10 minutes en voiture. On trouve un tennis, un commerce et une boucherie-charcuterie dans les environs.
Il est à vendre pour la somme de 219 000 €.
Contactez Cedric YAHIAOUI (tél : 06-66-57-00-63) pour tout renseignement sur la maison, sur les démarches à suivre ou sur les modalités de vente. Maisons France Confort Magny-le-Hongre est là pour vous accompagner dans tous vos projets immobiliers.
Annonce proposée par un Agent Commercial Partenaire.
Mentions légales
Terrain proposé par un partenaire foncier selon disponibilités et autorisation de publicité au prix de 59 000 €. Hors droit d'enregistrement et frais de notaire. Terrain + Maison proposés au prix de 219 000 € (Hors branchements et raccordements, papiers peints, peintures, revêtement de sol dans les chambres. Tarif modifiable sans préavis). Etiquette énergie : A. Différents modèles disponibles pour ce terrain. Assurances et garanties du constructeur (RC professionnelle, décennale, dommage ouvrage, garantie de remboursement de l'acompte, livraison à prix et délai convenu) : https://www.maisons-france-confort.fr/mentions-legales/. HEXAOM Services est enregistré auprès de l'ORIAS en tant que Courtier en financement, Niveau 1, sous le numéro 14001345.Agence Maisons France Confort de Magny-le-Hongre (77700)
- Téléphone :
- 01 84 80 92 96
- Adressse :
- 11 rue de Courtalin
77700 Magny-le-Hongre, France
