Maison neuve à
Mitry-Mory
(77290) Référence :
TM2434857_2
Prix du projet : Maison avec Terrain
prix 380 000 €
- 5 pièces
- 3 chambres
- Surface maison 90 m2
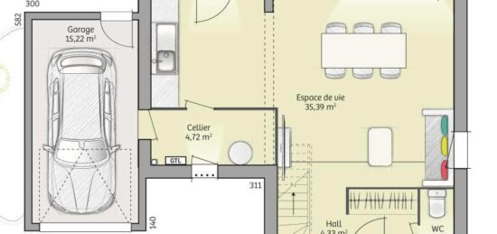
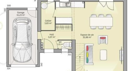
Maison de 5 pièces (90 m²) en vente à Mitry-Mory
MAISON 5 PIÈCES NEUVE
En vente : à deux pas de la station Mitry-Claye (Paris à 30 min avec le RER B), notre agence Maisons France Confort Magny-le-Hongre est heureuse de vous présenter cette maison de 5 pièces de 90 m² à Mitry-Mory (77290).
Cette maison comporte 2 niveaux. Elle se divise en trois chambres, une cuisine et une salle de bains. La maison est neuve.
Le terrain de la propriété est de 200 m².
Il y a des écoles maternelles et élémentaires à moins de 10 minutes à pied. Niveau transports en commun, on trouve la ligne de RER B (Mitry-Claye) ainsi que 15 gares à moins de 10 minutes en voiture. Il y a un bassin de natation, une bibliothèque, un commerce, une boulangerie, deux épiceries, un bureau de poste et deux boucheries-charcuteries à quelques minutes du logement.
Son prix de vente est de 380 000 €.
N'hésitez pas à prendre contact avec notre agence (Teddy MELES : 06-17-56-83-36) pour toute question sur le bien ou sur les modalités de vente. Donnez vie à vos projets immobiliers avec Maisons France Confort Magny-le-Hongre.
Annonce proposée par un Agent Commercial Partenaire.
Mentions légales
Terrain proposé par un partenaire foncier selon disponibilités et autorisation de publicité au prix de 160 000 €. Hors droit d'enregistrement et frais de notaire. Terrain + Maison proposés au prix de 380 000 € (Hors branchements et raccordements, papiers peints, peintures, revêtement de sol dans les chambres. Tarif modifiable sans préavis). Etiquette énergie : A. Différents modèles disponibles pour ce terrain. Assurances et garanties du constructeur (RC professionnelle, décennale, dommage ouvrage, garantie de remboursement de l'acompte, livraison à prix et délai convenu) : https://www.maisons-france-confort.fr/mentions-legales/. HEXAOM Services est enregistré auprès de l'ORIAS en tant que Courtier en financement, Niveau 1, sous le numéro 14001345.Agence Maisons France Confort de Magny-le-Hongre (77700)
- Téléphone :
- 01 84 80 92 96
- Adressse :
- 11 rue de Courtalin
77700 Magny-le-Hongre, France
