Maison neuve à
Mitry-Mory
(77290) Référence :
TM2434857_1
Prix du projet : Maison avec Terrain
prix 370 000 €
- 5 pièces
- 3 chambres
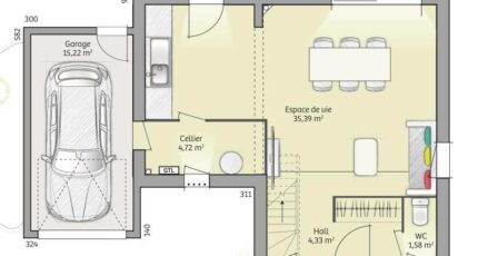
- Surface maison 90 m2
VENTE : maison F5 (90 m²) à Mitry-Mory
MAISON 5 PIÈCES NEUVE
À vendre : à proximité de la station Mitry-Claye (Paris à 30 min par le RER B), nous vous présentons à Mitry-Mory (77290), cette maison de 5 pièces de 90 m².
Cette maison compte 2 niveaux. Elle propose trois chambres, une cuisine et une salle de bains. La maison est neuve.
Le terrain de la propriété s'étend sur 200 m².
Des écoles maternelles et élémentaires se trouvent à moins de 10 minutes à pied. Niveau transports, il y a la ligne de RER B (Mitry-Claye) ainsi que 15 gares à moins de 10 minutes en voiture. On trouve un bassin de natation, une bibliothèque, un commerce, une boulangerie, deux épiceries, deux boucheries-charcuteries et un bureau de poste à quelques minutes.
Il est à vendre pour la somme de 370 000 €.
Prenez contact avec Teddy MELES (tél : 06-17-56-83-36) pour toute information sur cette maison.
Annonce proposée par un Agent Commercial Partenaire.
Mentions légales
Terrain proposé par un partenaire foncier selon disponibilités et autorisation de publicité au prix de 160 000 €. Hors droit d'enregistrement et frais de notaire. Terrain + Maison proposés au prix de 370 000 € (Hors branchements et raccordements, papiers peints, peintures, revêtement de sol dans les chambres. Tarif modifiable sans préavis). Etiquette énergie : A. Différents modèles disponibles pour ce terrain. Assurances et garanties du constructeur (RC professionnelle, décennale, dommage ouvrage, garantie de remboursement de l'acompte, livraison à prix et délai convenu) : https://www.maisons-france-confort.fr/mentions-legales/. HEXAOM Services est enregistré auprès de l'ORIAS en tant que Courtier en financement, Niveau 1, sous le numéro 14001345.Agence Maisons France Confort de Magny-le-Hongre (77700)
- Téléphone :
- 01 84 80 92 96
- Adressse :
- 11 rue de Courtalin
77700 Magny-le-Hongre, France
