Maison neuve à
Montereau-Fault-Yonne
(77130) Référence :
CY2430441_1
Prix du projet : Maison avec Terrain
prix 234 000 €
- 5 pièces
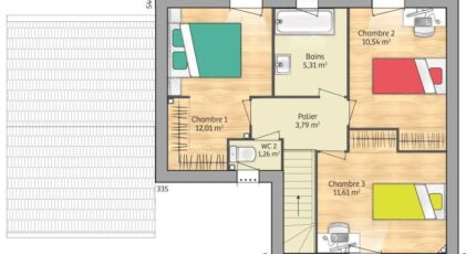
- 3 chambres
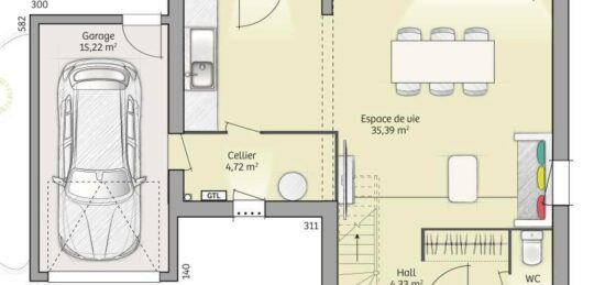
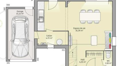
- Surface maison 90 m2
Maison T5 (90 m²) à vendre à Montereau-Fault-Yonne
MAISON 5 PIÈCES NEUVE
En vente : proche de la gare de Montereau (Paris à 60 min par le Transilien R), nous vous proposons cette maison de 5 pièces de 90 m² et de 274 m² de terrain à Montereau-Fault-Yonne (77130).
C'est une maison de 2 niveaux. Son intérieur inclut trois chambres, une cuisine et une salle de bains. Cette maison est neuve.
Plusieurs écoles (maternelle, élémentaire, primaire et collège) sont implantées à moins de 10 minutes à pied, tout comme une crèche. Côté transports, on trouve la gare Montereau à quelques pas du bien. Il y a une bibliothèque, un tennis, des commerces, des boulangeries, un supermarché, un bureau de poste et une poissonnerie à proximité de la maison.
Elle est proposée à l'achat pour 234 000 €.
Prenez contact avec notre agence (YAHIAOUI Cedric : 06-66-57-00-63) pour toute question sur la maison.
Annonce proposée par un Agent Commercial Partenaire.
Mentions légales
Terrain proposé par un partenaire foncier selon disponibilités et autorisation de publicité au prix de 74 000 €. Hors droit d'enregistrement et frais de notaire. Terrain + Maison proposés au prix de 234 000 € (Hors branchements et raccordements, papiers peints, peintures, revêtement de sol dans les chambres. Tarif modifiable sans préavis). Etiquette énergie : A. Différents modèles disponibles pour ce terrain. Assurances et garanties du constructeur (RC professionnelle, décennale, dommage ouvrage, garantie de remboursement de l'acompte, livraison à prix et délai convenu) : https://www.maisons-france-confort.fr/mentions-legales/. HEXAOM Services est enregistré auprès de l'ORIAS en tant que Courtier en financement, Niveau 1, sous le numéro 14001345.Agence Maisons France Confort de Magny-le-Hongre (77700)
- Téléphone :
- 01 84 80 92 96
- Adressse :
- 11 rue de Courtalin
77700 Magny-le-Hongre, France
