Maison neuve à
Montereau-Fault-Yonne
(77130) Référence :
CY2430453_1
Prix du projet : Maison avec Terrain
prix 234 000 €
- 5 pièces
- 3 chambres
- Surface maison 90 m2
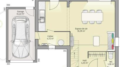
Montereau-Fault-Yonne : maison F5 (90 m²) à vendre
MAISON 5 PIÈCES NEUVE
À vendre : au pied de la gare de Montereau (Paris à 60 min avec le Transilien R), à Montereau-Fault-Yonne (77130), nous sommes ravis de vous proposer cette maison de 5 pièces de 90 m² et de 241 m² de terrain. Elle propose trois chambres, une cuisine et une salle de bains.
Il s'agit d'une maison de 2 niveaux. Elle est neuve.
Il y a plusieurs écoles (maternelle, élémentaire, primaire et collège) à moins de 10 minutes à pied, tout comme une crèche. Côté transports, on trouve la gare Montereau dans les alentours. Il y a une bibliothèque, un tennis, des commerces, des boulangeries, un supermarché, des épiceries et un bureau de poste à quelques minutes.
Elle est à vendre pour la somme de 234 000 €.
Contactez Cedric YAHIAOUI (tél : 06-66-57-00-63) pour tout renseignement sur la maison ou sur les démarches à suivre. Maisons France Confort Magny-le-Hongre est là pour vous accompagner à toutes les étapes de votre projet.
Annonce proposée par un Agent Commercial Partenaire.
Mentions légales
Terrain proposé par un partenaire foncier selon disponibilités et autorisation de publicité au prix de 74 000 €. Hors droit d'enregistrement et frais de notaire. Terrain + Maison proposés au prix de 234 000 € (Hors branchements et raccordements, papiers peints, peintures, revêtement de sol dans les chambres. Tarif modifiable sans préavis). Etiquette énergie : A. Différents modèles disponibles pour ce terrain. Assurances et garanties du constructeur (RC professionnelle, décennale, dommage ouvrage, garantie de remboursement de l'acompte, livraison à prix et délai convenu) : https://www.maisons-france-confort.fr/mentions-legales/. HEXAOM Services est enregistré auprès de l'ORIAS en tant que Courtier en financement, Niveau 1, sous le numéro 14001345.Agence Maisons France Confort de Magny-le-Hongre (77700)
- Téléphone :
- 01 84 80 92 96
- Adressse :
- 11 rue de Courtalin
77700 Magny-le-Hongre, France
