Maison neuve à
Montreuil
(93100) Référence :
TM2465569_3
Prix du projet : Maison avec Terrain
prix 470 000 €
- 6 pièces
- 5 chambres
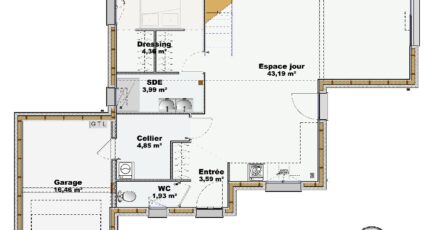
- Surface maison 114 m2
Maison de 6 pièces (114 m²) en vente à Montreuil
EMPLACEMENT PRIVILÉGIÉ - MAISON 6 PIÈCES NEUVE
À vendre : à côté de la station Vincennes (Paris à 3 min avec le RER A), Maisons France Confort Magny-le-Hongre vous propose cette maison de 6 pièces de 114 m² et de 300 m² de terrain bénéficiant d'un emplacement privilégié dans Montreuil (93100). Son intérieur propose cinq chambres, une cuisine et deux salles de bains.
Cette maison possède 2 niveaux. Elle est neuve.
Cette maison se trouve dans un quartier recherché. Des établissements scolaires (de la maternelle au lycée) sont implantés à moins de 10 minutes à pied, tout comme quatre structures d'accueil pour les enfants en bas âge. Niveau transports en commun, il y a cinq lignes de RER ainsi que 55 gares à moins de 10 minutes en voiture. On trouve une bibliothèque, des commerces, des épiceries, deux bureaux de poste, des boucheries-charcuteries et quatre supérettes dans les environs.
Elle est proposée à l'achat pour 470 000 €.
N'hésitez pas à prendre contact avec notre agence (Teddy MELES : 06-17-56-83-36) pour tout renseignement sur la maison.
Annonce proposée par un Agent Commercial Partenaire.
Mentions légales
Terrain proposé par un partenaire foncier selon disponibilités et autorisation de publicité au prix de 265 000 €. Hors droit d'enregistrement et frais de notaire. Terrain + Maison proposés au prix de 470 000 € (Hors branchements et raccordements, papiers peints, peintures, revêtement de sol dans les chambres. Tarif modifiable sans préavis). Etiquette énergie : A. Différents modèles disponibles pour ce terrain. Assurances et garanties du constructeur (RC professionnelle, décennale, dommage ouvrage, garantie de remboursement de l'acompte, livraison à prix et délai convenu) : https://www.maisons-france-confort.fr/mentions-legales/. HEXAOM Services est enregistré auprès de l'ORIAS en tant que Courtier en financement, Niveau 1, sous le numéro 14001345.Agence Maisons France Confort de Magny-le-Hongre (77700)
- Téléphone :
- 01 84 80 92 96
- Adressse :
- 11 rue de Courtalin
77700 Magny-le-Hongre, France
