Maison neuve à
Veneux-les-Sablons (77250) Référence : DC2482658_1

Prix du projet : Maison avec Terrain

prix 326 416 €

  • 5 pièces
  • 3 chambres
  • Surface maison 90 m2

VENTE : maison de 5 pièces (90 m²) à Moret-Loing-et-Orvanne
MAISON 5 PIÈCES NEUVE - PROCHE DE MELUN
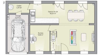
À deux pas du Transilien R (gare de Saint-Mammès, 50 min de Paris), venez découvrir à vendre à Moret-Loing-et-Orvanne (77250), cette maison de 5 pièces de 90 m² et de 460 m² de terrain. Elle propose trois chambres, une cuisine et une salle de bains.
C'est une maison de 2 niveaux. Elle est neuve.
L'École Maternelle les Lilas est implantée à moins de 10 minutes à pied. Niveau transports, on trouve 10 gares à moins de 10 minutes en voiture. Il y a un tennis, une bibliothèque et une épicerie à proximité du logement.
Elle est proposée à l'achat pour 326 416 €.
Contactez notre agence (David CORDIER : 06-10-79-38-15) pour obtenir de plus amples informations sur la maison. Maisons France Confort Melun vous accompagne dans tous vos projets immobiliers et dans toutes vos démarches.

Annonce proposée par un Agent Commercial Partenaire.

Mentions légales

Terrain proposé par un partenaire foncier selon disponibilités et autorisation de publicité au prix de 115 900 €. Hors droit d'enregistrement et frais de notaire. Terrain + Maison proposés au prix de 326 416 € (Hors branchements et raccordements, papiers peints, peintures, revêtement de sol dans les chambres. Tarif modifiable sans préavis). Etiquette énergie : A. Différents modèles disponibles pour ce terrain. Assurances et garanties du constructeur (RC professionnelle, décennale, dommage ouvrage, garantie de remboursement de l'acompte, livraison à prix et délai convenu) : https://www.maisons-france-confort.fr/mentions-legales/. HEXAOM Services est enregistré auprès de l'ORIAS en tant que Courtier en financement, Niveau 1, sous le numéro 14001345.

Contactez l'agence de Melun

01 64 14 43 20

    * Champs obligatoires

    Vos informations sont traitées par HEXAOM et transmises à un conseiller commercial qui vous contactera afin de répondre à votre demande. Les plans et images présentés sur notre site sont la propriété d’HEXAOM et ne peuvent pas être reproduits sans son accord. Pour retrouver notre politique de protection des données personnelles et exercer vos droits conformément à la « loi informatique et liberté » cliquez-ici.