Maison neuve à
Mouen (14790) Référence : JS2484980_1

Prix du projet : Maison avec Terrain

prix 245 400 €

  • 7 pièces
  • 5 chambres
  • Surface maison 102 m2

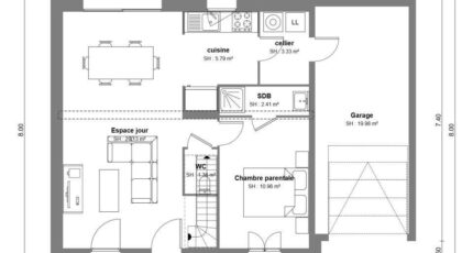
VENTE : maison de 7 pièces (102 m²) à Mouen
IDÉALEMENT SITUÉE - MAISON 7 PIÈCES NEUVE
À vendre : située à deux pas de Caen, idéalement située dans Mouen (14790), nous vous présentons cette maison de 7 pièces de 102 m² et de 325 m² de terrain.
Cette maison comporte 2 niveaux. Son intérieur comporte cinq chambres, une cuisine et deux salles de bains. Cette maison est neuve.
Cette maison se trouve dans un secteur attractif. Il y a l'École Élémentaire Pierre Herbet Mouen et l'École Maternelle Pierre Herbet Mouen à moins de 10 minutes à pied. Niveau transports, on trouve les gares Bretteville-Norrey et Saint-Germain-en-Laye Bel-Air-Fourqueux T13 à moins de 10 minutes en voiture. L'autoroute A84 et les nationales N814 et N13 sont accessibles à moins de 6 km. Il y a une bibliothèque et trois commerces dans les environs.
Elle est à vendre pour la somme de 245 400 €.
N'hésitez pas à prendre contact avec Emilie HUE (tél : 06-29-81-46-66) pour obtenir de plus amples informations sur la maison ou sur les modalités de vente.

Annonce proposée par un Agent Commercial Partenaire.

Mentions légales

Terrain proposé par un partenaire foncier selon disponibilités et autorisation de publicité au prix de 75 400 €. Hors droit d'enregistrement et frais de notaire. Terrain + Maison proposés au prix de 245 400 € (Hors branchements et raccordements, papiers peints, peintures, revêtement de sol dans les chambres. Tarif modifiable sans préavis). Etiquette énergie : A. Différents modèles disponibles pour ce terrain. Assurances et garanties du constructeur (RC professionnelle, décennale, dommage ouvrage, garantie de remboursement de l'acompte, livraison à prix et délai convenu) : https://www.maisons-france-confort.fr/mentions-legales/. HEXAOM Services est enregistré auprès de l'ORIAS en tant que Courtier en financement, Niveau 1, sous le numéro 14001345.

Contactez l'agence de Bayeux

02 31 51 20 91

    * Champs obligatoires

    Vos informations sont traitées par HEXAOM et transmises à un conseiller commercial qui vous contactera afin de répondre à votre demande. Les plans et images présentés sur notre site sont la propriété d’HEXAOM et ne peuvent pas être reproduits sans son accord. Pour retrouver notre politique de protection des données personnelles et exercer vos droits conformément à la « loi informatique et liberté » cliquez-ici.