Maison neuve à
Mouen (14790) Référence : JS2484984_1

Prix du projet : Maison avec Terrain

prix 269 640 €

  • 7 pièces
  • 5 chambres
  • Surface maison 102 m2

VENTE : maison T7 (102 m²) à Mouen
IDÉALEMENT SITUÉE - MAISON 7 PIÈCES NEUVE
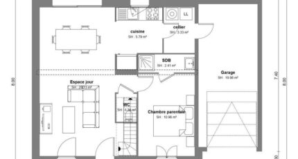
En vente à 9 km de Caen, Maisons France Confort Bayeux vous propose, idéalement située dans Mouen (14790), cette maison de 7 pièces de 102 m² et de 470 m² de terrain. Son intérieur comporte cinq chambres, une cuisine et deux salles de bains.
Il s'agit d'une maison de 2 niveaux. Elle est neuve.
Le bien se trouve dans un quartier recherché. L'École Élémentaire Pierre Herbet Mouen et l'École Maternelle Pierre Herbet Mouen sont implantées à moins de 10 minutes à pied. Côté transports en commun, il y a deux gares (Bretteville-Norrey et Saint-Germain-en-Laye Bel-Air-Fourqueux T13) à moins de 10 minutes en voiture. L'autoroute A84 et les nationales N814 et N13 sont accessibles à moins de 6 km. On trouve une bibliothèque et trois commerces dans les environs.
Il est proposé à l'achat pour 269 640 €.
Prenez contact avec Emilie HUE (tél : 06-29-81-46-66) pour tout renseignement sur la maison ou sur les modalités de vente. Maisons France Confort Bayeux vous accompagne à toutes les étapes de l'achat et dans tous vos projets immobiliers.

Annonce proposée par un Agent Commercial Partenaire.

Mentions légales

Terrain proposé par un partenaire foncier selon disponibilités et autorisation de publicité au prix de 99 640 €. Hors droit d'enregistrement et frais de notaire. Terrain + Maison proposés au prix de 269 640 € (Hors branchements et raccordements, papiers peints, peintures, revêtement de sol dans les chambres. Tarif modifiable sans préavis). Etiquette énergie : A. Différents modèles disponibles pour ce terrain. Assurances et garanties du constructeur (RC professionnelle, décennale, dommage ouvrage, garantie de remboursement de l'acompte, livraison à prix et délai convenu) : https://www.maisons-france-confort.fr/mentions-legales/. HEXAOM Services est enregistré auprès de l'ORIAS en tant que Courtier en financement, Niveau 1, sous le numéro 14001345.

Contactez l'agence de Bayeux

02 31 51 20 91

    * Champs obligatoires

    Vos informations sont traitées par HEXAOM et transmises à un conseiller commercial qui vous contactera afin de répondre à votre demande. Les plans et images présentés sur notre site sont la propriété d’HEXAOM et ne peuvent pas être reproduits sans son accord. Pour retrouver notre politique de protection des données personnelles et exercer vos droits conformément à la « loi informatique et liberté » cliquez-ici.