Maison neuve à
Mouroux (77120) Référence : CY2403656_2

Prix du projet : Maison avec Terrain

prix 277 000 €

  • 5 pièces
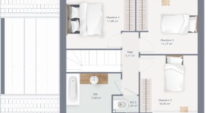
  • 3 chambres
  • Surface maison 90 m2

VENTE : maison de 5 pièces (90 m²) à Mouroux
IDÉALEMENT SITUÉE - MAISON 5 PIÈCES NEUVE
À vendre : proche du Transilien P (55 min de Paris), Maisons France Confort Mareuil-lès-Meaux vous propose cette maison de 5 pièces de 90 m² idéalement située dans Mouroux (77120). Son intérieur inclut trois chambres, une cuisine et une salle de bains.
Le terrain de la maison est de 548 m².
Il s'agit d'une maison de 2 niveaux. Elle est neuve.
La maison se trouve dans un secteur attractif. Il y a cinq établissements scolaires à moins de 10 minutes à pied. Niveau transports, on trouve quatre gares à moins de 10 minutes en voiture. On trouve un tennis, trois commerces, deux boulangeries, une épicerie et un bureau de poste dans les environs.
Son prix de vente est de 164 320 €.
Prenez contact avec notre agence (YAHIAOUI Cedric : 06-66-57-00-63) pour toute information sur la maison. Maisons France Confort Mareuil-lès-Meaux est là pour vous accompagner dans toutes vos démarches.

Annonce proposée par un Agent Commercial Partenaire.

Mentions légales

Terrain proposé par un partenaire foncier selon disponibilités et autorisation de publicité au prix de 115 000 €. Hors droit d'enregistrement et frais de notaire. Terrain + Maison proposés au prix de 277 000 € (Hors branchements et raccordements, papiers peints, peintures, revêtement de sol dans les chambres. Tarif modifiable sans préavis). Etiquette énergie : A. Différents modèles disponibles pour ce terrain. Assurances et garanties du constructeur (RC professionnelle, décennale, dommage ouvrage, garantie de remboursement de l'acompte, livraison à prix et délai convenu) : https://www.maisons-france-confort.fr/mentions-legales/. HEXAOM Services est enregistré auprès de l'ORIAS en tant que Courtier en financement, Niveau 1, sous le numéro 14001345.

Contactez l'agence de Mareuil-lès-Meaux

01 60 09 28 30

    * Champs obligatoires

    Vos informations sont traitées par HEXAOM et transmises à un conseiller commercial qui vous contactera afin de répondre à votre demande. Les plans et images présentés sur notre site sont la propriété d’HEXAOM et ne peuvent pas être reproduits sans son accord. Pour retrouver notre politique de protection des données personnelles et exercer vos droits conformément à la « loi informatique et liberté » cliquez-ici.