Maison neuve à
Mouroux (77120) Référence : CY2403883_1

Prix du projet : Maison avec Terrain

prix 284 000 €

  • 5 pièces
  • 3 chambres
  • Surface maison 80 m2

VENTE : maison F5 (80 m²) à Mouroux
IDÉALEMENT SITUÉE - MAISON 5 PIÈCES NEUVE
À vendre : au pied du Transilien P (55 min de Paris), notre agence Maisons France Confort Mareuil-lès-Meaux est heureuse de vous présenter cette maison de 5 pièces de 80 m² et de 1 071 m² de terrain idéalement située dans Mouroux (77120).
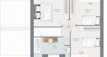
Cette maison possède 2 niveaux. Son intérieur dispose de trois chambres, d'une cuisine et d'une salle de bains. Cette maison est neuve.
Cette maison est située dans un quartier recherché. On trouve cinq établissements scolaires à moins de 10 minutes à pied. Niveau transports, il y a quatre gares à moins de 10 minutes en voiture. On trouve un tennis, trois commerces, deux boulangeries, une épicerie et un bureau de poste à quelques minutes.
Elle est proposée à l'achat pour 225 680 €.
Contactez notre constructeur (Cedric YAHIAOUI : 06-66-57-00-63) pour tout renseignement sur la maison ou sur les démarches à suivre. Maisons France Confort Mareuil-lès-Meaux vous accompagne à toutes les étapes de l'achat et dans tous vos projets immobiliers.

Annonce proposée par un Agent Commercial Partenaire.

Mentions légales

Terrain proposé par un partenaire foncier selon disponibilités et autorisation de publicité au prix de 140 000 €. Hors droit d'enregistrement et frais de notaire. Terrain + Maison proposés au prix de 284 000 € (Hors branchements et raccordements, papiers peints, peintures, revêtement de sol dans les chambres. Tarif modifiable sans préavis). Etiquette énergie : A. Différents modèles disponibles pour ce terrain. Assurances et garanties du constructeur (RC professionnelle, décennale, dommage ouvrage, garantie de remboursement de l'acompte, livraison à prix et délai convenu) : https://www.maisons-france-confort.fr/mentions-legales/. HEXAOM Services est enregistré auprès de l'ORIAS en tant que Courtier en financement, Niveau 1, sous le numéro 14001345.

Contactez l'agence de Mareuil-lès-Meaux

01 60 09 28 30

    * Champs obligatoires

    Vos informations sont traitées par HEXAOM et transmises à un conseiller commercial qui vous contactera afin de répondre à votre demande. Les plans et images présentés sur notre site sont la propriété d’HEXAOM et ne peuvent pas être reproduits sans son accord. Pour retrouver notre politique de protection des données personnelles et exercer vos droits conformément à la « loi informatique et liberté » cliquez-ici.