Maison neuve à
Nanteuil-lès-Meaux
(77100) Référence :
CY2406807_2
Prix du projet : Maison avec Terrain
prix 321 000 €
- 5 pièces
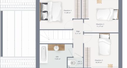
- 3 chambres
- Surface maison 90 m2
VENTE d'une maison F5 (90 m²) à Nanteuil-lès-Meaux
IDÉALEMENT SITUÉE - MAISON 5 PIÈCES NEUVE
Proche du Transilien P (gare de Meaux, 25 min de Paris), nous sommes ravis de vous présenter cette maison de 5 pièces de 90 m² et de 798 m² de terrain idéalement située dans Nanteuil-lès-Meaux (77100).
Cette maison compte 2 niveaux. Elle comporte trois chambres, une cuisine et une salle de bains. La maison est neuve.
La maison est située dans un secteur convoité. Des écoles maternelles et élémentaires se trouvent à moins de 10 minutes à pied. Niveau transports, il y a huit gares à moins de 10 minutes en voiture. On trouve une bibliothèque, trois commerces, deux boulangeries, une épicerie et un bureau de poste à proximité.
Son prix de vente est de 321 000 €.
Contactez notre agence (YAHIAOUI Cedric : 06-66-57-00-63) pour toute question sur la maison.
Annonce proposée par un Agent Commercial Partenaire.
Mentions légales
Terrain proposé par un partenaire foncier selon disponibilités et autorisation de publicité au prix de 159 000 €. Hors droit d'enregistrement et frais de notaire. Terrain + Maison proposés au prix de 321 000 € (Hors branchements et raccordements, papiers peints, peintures, revêtement de sol dans les chambres. Tarif modifiable sans préavis). Etiquette énergie : A. Différents modèles disponibles pour ce terrain. Assurances et garanties du constructeur (RC professionnelle, décennale, dommage ouvrage, garantie de remboursement de l'acompte, livraison à prix et délai convenu) : https://www.maisons-france-confort.fr/mentions-legales/. HEXAOM Services est enregistré auprès de l'ORIAS en tant que Courtier en financement, Niveau 1, sous le numéro 14001345.Agence Maisons France Confort de Mareuil-lès-Meaux (77100)
- Téléphone :
- 01 60 09 28 30
- Adressse :
- Domexpo Est Village La Hayette
77100 Mareuil-lès-Meaux, France
