Maison neuve à
Nanteuil-lès-Meaux (77100) Référence : CY2468487_1

Prix du projet : Maison avec Terrain

prix 365 000 €

  • 5 pièces
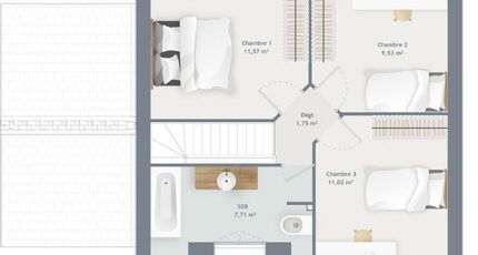
  • 3 chambres
  • Surface maison 80 m2

VENTE : maison de 5 pièces (80 m²) à Nanteuil-lès-Meaux
IDÉALEMENT SITUÉE - MAISON 5 PIÈCES NEUVE
À deux pas de la gare de Meaux (Paris à 25 min avec le Transilien P), nous sommes ravis de vous proposer cette maison de 5 pièces de 80 m² idéalement située dans Nanteuil-lès-Meaux (77100).
C'est une maison de 2 niveaux. Elle propose trois chambres, une cuisine et une salle de bains. La maison est neuve.
Le terrain du bien s'étend sur 400 m².
La maison se trouve dans un quartier recherché. Il y a des écoles maternelles et élémentaires à moins de 10 minutes à pied. Côté transports, on trouve huit gares à moins de 10 minutes en voiture. Il y a une bibliothèque, quatre commerces, un bureau de poste, une boucherie-charcuterie et une épicerie à proximité.
Son prix de vente est de 365 000 €.
Contactez notre agence (Cedric YAHIAOUI : 06-66-57-00-63) pour plus de renseignements sur la maison.

Annonce proposée par un Agent Commercial Partenaire.

Mentions légales

Terrain proposé par un partenaire foncier selon disponibilités et autorisation de publicité au prix de 175 000 €. Hors droit d'enregistrement et frais de notaire. Terrain + Maison proposés au prix de 365 000 € (Hors branchements et raccordements, papiers peints, peintures, revêtement de sol dans les chambres. Tarif modifiable sans préavis). Etiquette énergie : A. Différents modèles disponibles pour ce terrain. Assurances et garanties du constructeur (RC professionnelle, décennale, dommage ouvrage, garantie de remboursement de l'acompte, livraison à prix et délai convenu) : https://www.maisons-france-confort.fr/mentions-legales/. HEXAOM Services est enregistré auprès de l'ORIAS en tant que Courtier en financement, Niveau 1, sous le numéro 14001345.

Contactez l'agence de Mareuil-lès-Meaux

01 60 09 28 30

    * Champs obligatoires

    Vos informations sont traitées par HEXAOM et transmises à un conseiller commercial qui vous contactera afin de répondre à votre demande. Les plans et images présentés sur notre site sont la propriété d’HEXAOM et ne peuvent pas être reproduits sans son accord. Pour retrouver notre politique de protection des données personnelles et exercer vos droits conformément à la « loi informatique et liberté » cliquez-ici.