Maison neuve à
Neuilly-en-Thelle (60530) Référence : CY2410954_2

Prix du projet : Maison avec Terrain

prix 290 500 €

  • 5 pièces
  • 3 chambres
  • Surface maison 90 m2

VENTE : maison de 5 pièces (90 m²) à Neuilly-en-Thelle
IDÉALEMENT SITUÉE - MAISON 5 PIÈCES NEUVE
Proche du Transilien H (gare de Persan-Beaumont, 40 min de Paris), découvrez à vendre, idéalement située dans Neuilly-en-Thelle (60530), cette maison de 5 pièces de 90 m².
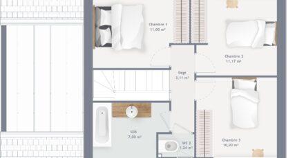
Cette maison compte 2 niveaux. Elle est composée de trois chambres, d'une cuisine et d'une salle de bains. La maison est neuve.
Le terrain du bien s'étend sur 761 m².
Cette maison se trouve dans un secteur attractif. Il y a l'École Élémentaire Claude Debussy, l'École Élémentaire Léonard de Vinci et l'École Maternelle Georges Brassens à moins de 10 minutes à pied. Côté transports en commun, on trouve 11 gares à moins de 10 minutes en voiture. L'autoroute A16 est accessible à 9 km et Cergy est située à 27 km. Il y a une bibliothèque, deux commerces, une boulangerie, un supermarché, une boucherie-charcuterie et un bureau de poste à quelques minutes à peine.
Elle est proposée à l'achat pour 290 500 €.
Contactez notre agence (YAHIAOUI Cedric : 06-66-57-00-63) pour tout renseignement sur la maison ou sur les démarches à suivre. Maisons France Confort Mareuil-lès-Meaux est là pour vous accompagner dans tous vos projets immobiliers.

Annonce proposée par un Agent Commercial Partenaire.

Mentions légales

Terrain proposé par un partenaire foncier selon disponibilités et autorisation de publicité au prix de 128 500 €. Hors droit d'enregistrement et frais de notaire. Terrain + Maison proposés au prix de 290 500 € (Hors branchements et raccordements, papiers peints, peintures, revêtement de sol dans les chambres. Tarif modifiable sans préavis). Etiquette énergie : A. Différents modèles disponibles pour ce terrain. Assurances et garanties du constructeur (RC professionnelle, décennale, dommage ouvrage, garantie de remboursement de l'acompte, livraison à prix et délai convenu) : https://www.maisons-france-confort.fr/mentions-legales/. HEXAOM Services est enregistré auprès de l'ORIAS en tant que Courtier en financement, Niveau 1, sous le numéro 14001345.

Contactez l'agence de Mareuil-lès-Meaux

01 60 09 28 30

    * Champs obligatoires

    Vos informations sont traitées par HEXAOM et transmises à un conseiller commercial qui vous contactera afin de répondre à votre demande. Les plans et images présentés sur notre site sont la propriété d’HEXAOM et ne peuvent pas être reproduits sans son accord. Pour retrouver notre politique de protection des données personnelles et exercer vos droits conformément à la « loi informatique et liberté » cliquez-ici.