Maison neuve à
Péroy-les-Gombries
(60440) Référence :
XDSS2433201_4
Prix du projet : Maison avec Terrain
prix 330 000 €
- 5 pièces
- 3 chambres
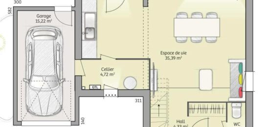
- Surface maison 90 m2
VENTE : maison de 5 pièces (90 m²) à Péroy-les-Gombries
IDÉALEMENT SITUÉE - MAISON 5 PIÈCES NEUVE
En vente : proche de la gare d'Ormoy-Villers (Paris à 50 min avec le Transilien K), nous sommes heureux de vous proposer cette maison de 5 pièces de 90 m² idéalement située dans Péroy-les-Gombries (60440).
Cette maison compte 2 niveaux. Son intérieur propose trois chambres, une cuisine et une salle de bains. Cette maison est neuve.
Le terrain du bien s'étend sur 419 m².
La propriété se trouve dans un quartier attractif. On y trouve une école primaire. Niveau transports en commun, il y a les gares Ormoy-Villers, Nanteuil-le-Haudouin et Crépy-en-Valois à moins de 10 minutes en voiture. La nationale N2 est accessible à 3 km et Meaux est située à 23 km. On trouve une bibliothèque et une épicerie à quelques minutes de la maison.
Elle est proposée à l'achat pour 330 000 €.
N'hésitez pas à prendre contact avec Xavier DOS SANTOS (tél : 06-16-27-53-27) pour toute question sur la maison, sur les démarches à suivre ou sur les modalités de vente. Maisons France Confort Compiègne vous accompagne à toutes les étapes de votre projet et dans tous vos projets immobiliers.
Mentions légales
Terrain proposé par un partenaire foncier selon disponibilités et autorisation de publicité au prix de 129 500 €. Hors droit d'enregistrement et frais de notaire. Terrain + Maison proposés au prix de 330 000 € (Hors branchements et raccordements, papiers peints, peintures, revêtement de sol dans les chambres. Tarif modifiable sans préavis). Etiquette énergie : A. Différents modèles disponibles pour ce terrain. Assurances et garanties du constructeur (RC professionnelle, décennale, dommage ouvrage, garantie de remboursement de l'acompte, livraison à prix et délai convenu) : https://www.maisons-france-confort.fr/mentions-legales/. HEXAOM Services est enregistré auprès de l'ORIAS en tant que Courtier en financement, Niveau 1, sous le numéro 14001345.Agence Maisons France Confort de Compiègne (60200)
- Téléphone :
- 03 44 86 81 34
- Adressse :
- 47, cours Guynemer
60200 Compiègne, France
