Maison neuve à
Pierrelatte
(26700) Référence :
OP2429521_4
Prix du projet : Maison avec Terrain
prix 346 200 €
- 5 pièces
- 4 chambres
- Surface maison 120 m2
MAISONS FRANCE CONFORT vous propose cette maison, d'architecture contemporaine, qui allie confort et esthétique.
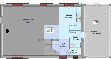
D'une surface habitable de 120 m² ce modèle sépare sur 2 niveaux le coin jour et le coin nuit,
Le rez-de-chaussée entièrement dédié à l'espace à vivre, découvre un espace jour spacieux et lumineux avec cuisine ouverte sur salon, salle à manger et un cellier communiquant au garage. L'étage présente un espace nuit avec 4 chambres et une salle de bains, dont une suite parentale de 18,23 m² avec salle d'eau et dressing.
Vous serez également séduit par ses nombreuses options (volets roulants électriques, centralisation, domotique...).
Vous avez le coup de coeur pour ce modèle ou vous souhaitez personnaliser votre maison ?
Votre conseiller en construction Olivier PUAUX 06.01.46.37.15 se tient à votre disposition.
Mentions légales
Terrain proposé par un partenaire foncier selon disponibilités et autorisation de publicité au prix de 94 900 €. Hors droit d'enregistrement et frais de notaire. Terrain + Maison proposés au prix de 346 200 € (Hors branchements et raccordements, papiers peints, peintures, revêtement de sol dans les chambres. Tarif modifiable sans préavis). Etiquette énergie : A. Différents modèles disponibles pour ce terrain. Assurances et garanties du constructeur (RC professionnelle, décennale, dommage ouvrage, garantie de remboursement de l'acompte, livraison à prix et délai convenu) : https://www.maisons-france-confort.fr/mentions-legales/. HEXAOM Services est enregistré auprès de l'ORIAS en tant que Courtier en financement, Niveau 1, sous le numéro 14001345.Agence Maisons France Confort de Montélimar (26200)
- Téléphone :
- 04 75 92 40 32
- Adressse :
- Bd du Président François Mitterrand
26200 Montélimar, France
