Maison neuve à
Pluvigner (56330) Référence : AS2292489_3

Prix du projet : Maison avec Terrain

prix 279 000 €

  • 5 pièces
  • 4 chambres
  • Surface maison 88 m2

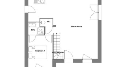
VENTE d'une maison de 5 pièces (88 m²) à Pluvigner
IDÉALEMENT SITUÉE - MAISON 5 PIÈCES NEUVE
À 23 km de la côte atlantique et à 27 km de Lorient, ayez le coup de coeur pour en vente, idéalement située dans Pluvigner (56330), cette maison de 5 pièces de 88 m² et de 582 m² de terrain.
Cette maison compte 2 niveaux. Son intérieur se divise en quatre chambres, une cuisine et une salle de bains. Cette maison est neuve.
La maison se trouve dans un quartier convoité. L'École Primaire Publique Joseph Rollo, l'École Primaire Privée Saint Guigner et le Collège Goh Lanno sont implantés à moins de 10 minutes à pied. Côté transports en commun, on trouve deux gares (Landaul-Mendon et Landévant) à moins de 10 minutes en voiture. La nationale N165 est accessible à 8 km. Il y a un tennis, une bibliothèque, des commerces, des boulangeries, deux supermarchés, deux boucheries-charcuteries et un bureau de poste à proximité du logement.
Elle est proposée à l'achat pour 279 000 €.
N'hésitez pas à prendre contact avec notre agence (SPECKHALS Amaury : 02-97-68-32-50) pour tout renseignement sur la propriété ou sur les modalités de vente. Donnez vie à vos projets immobiliers avec Maisons de l'Avenir Vannes.

Mentions légales

Maisons de l’Avenir, constructeur de maisons individuelles, propose en collaboration avec ses partenaires fonciers, une sélection de terrains constructibles, selon disponibilité, pour la construction de maisons neuves définies par le constructeur, avec un contrat de construction de maison individuelle, dans le cadre de la loi du 19/12/1990. Prix net, hors frais notariés, d'enregistrement et de publicité foncière

Terrain proposé au prix de : 99 000 €

Maison proposée au prix de : 180 000 €

Etiquette énergie : A. Assurances et garanties du constructeur (RC professionnelle, décennale, dommage ouvrage, Garantie de livraison à prix et délai convenu). https://www.maisonsdelavenir.com/mentions-legales/

Contactez l'agence de Vannes

02 97 68 32 50

    * Champs obligatoires

    Vos informations sont traitées par HEXAOM et transmises à un conseiller commercial qui vous contactera afin de répondre à votre demande. Les plans et images présentés sur notre site sont la propriété d’HEXAOM et ne peuvent pas être reproduits sans son accord. Pour retrouver notre politique de protection des données personnelles et exercer vos droits conformément à la « loi informatique et liberté » cliquez-ici.