Maison neuve à
Pluvigner
(56330) Référence :
RLBC2474239_3
Prix du projet : Maison avec Terrain
prix 345 200 €
- 5 pièces
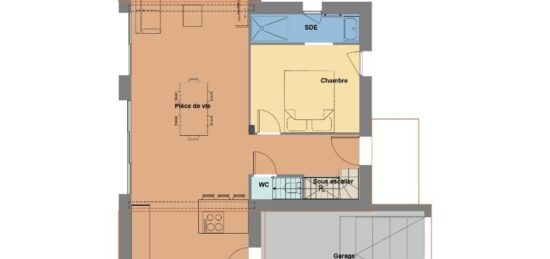
- 4 chambres
- Surface maison 114 m2
VENTE d'une maison de 5 pièces (114 m²) à Pluvigner
IDÉALEMENT SITUÉE - MAISON 5 PIÈCES NEUVE
- MAISON A OSSATURE BOIS -
À vendre : située à 23 km de la côte atlantique et à quelques kilomètres de Lorient, nous sommes ravis de vous proposer cette maison de 5 pièces de 114 m² idéalement située dans Pluvigner (56330).
Il s'agit d'une maison de 2 niveaux. Son intérieur se divise en quatre chambres, une cuisine et une salle de bains. Cette maison est neuve.
Le terrain de la propriété s'étend sur 420 m².
La maison se situe dans un secteur convoité. Il y a l'École Primaire Publique Joseph Rollo, l'École Primaire Privée Saint Guigner et le Collège Goh Lanno à proximité. Niveau transports, on trouve deux gares (Landaul-Mendon et Landévant) à moins de 10 minutes en voiture. Il y a un accès à la nationale N165 à 8 km. Il y a un tennis, une bibliothèque, des commerces, une poissonnerie, une supérette, un bureau de poste et une boucherie-charcuterie à quelques minutes à peine.
Elle est proposée à l'achat pour 345 200 €.
Contactez Riwal LE BARON COURTET (02-97-21-63-96) pour plus de renseignements sur la maison, sur les modalités de vente ou sur les démarches à suivre. Maisons de l'Avenir Lorient vous accompagne à toutes les étapes de l'achat et dans tous vos projets immobiliers.
Mentions légales
Terrain proposé par un partenaire foncier selon disponibilités et autorisation de publicité au prix de 68 000 €. Hors droit d'enregistrement et frais de notaire. Terrain + Maison proposés au prix de 345 200 € (Hors branchements et raccordements, papiers peints, peintures, revêtement de sol dans les chambres. Tarif modifiable sans préavis). Etiquette énergie : A. Différents modèles disponibles pour ce terrain. Assurances et garanties du constructeur (RC professionnelle, décennale, dommage ouvrage, garantie de remboursement de l'acompte, livraison à prix et délai convenu) : https://www.maisonsdelavenir.com/mentions-legales/.Agence Maisons de l'Avenir de Lorient (56100)
- Téléphone :
- 02 97 21 63 96
- Adressse :
- 158 rue du Colonel Muller
56100 Lorient, France
