Maison neuve à
Pluvigner (56330) Référence : ASL2484970_5

Prix du projet : Maison avec Terrain

prix 293 900 €

  • 5 pièces
  • 4 chambres
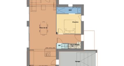
  • Surface maison 95 m2

Maison T5 (95 m²) à vendre à Pluvigner
MAISON 5 PIÈCES NEUVE - PROCHE DE LORIENT
À 23 km de l'océan Atlantique et à deux pas de Lorient, découvrez cette maison de 5 pièces de 95 m² à Pluvigner (56330). Elle compte quatre chambres, une cuisine et deux salles de bains.
Le terrain de cette maison s'étend sur 352 m².
Il s'agit d'une maison de 2 niveaux.
Elle est à vendre pour la somme de 293 900 €.
N'hésitez pas à prendre contact avec Anne-Sophie LAPART ) pour toute question sur la maison, sur les modalités de vente ou sur les démarches à suivre.

Mentions légales

Terrain proposé par un partenaire foncier selon disponibilités et autorisation de publicité au prix de 69 900 €. Hors droit d'enregistrement et frais de notaire. Terrain + Maison proposés au prix de 293 900 € (Hors branchements et raccordements, papiers peints, peintures, revêtement de sol dans les chambres. Tarif modifiable sans préavis). Etiquette énergie : A. Différents modèles disponibles pour ce terrain. Assurances et garanties du constructeur (RC professionnelle, décennale, dommage ouvrage, garantie de remboursement de l'acompte, livraison à prix et délai convenu) : https://www.maisonsdelavenir.com/mentions-legales/.

Contactez l'agence de Lorient

02 97 21 63 96

    * Champs obligatoires

    Vos informations sont traitées par HEXAOM et transmises à un conseiller commercial qui vous contactera afin de répondre à votre demande. Les plans et images présentés sur notre site sont la propriété d’HEXAOM et ne peuvent pas être reproduits sans son accord. Pour retrouver notre politique de protection des données personnelles et exercer vos droits conformément à la « loi informatique et liberté » cliquez-ici.