Maison neuve à
Pluvigner (56330) Référence : DD2487501_3

Prix du projet : Maison avec Terrain

prix 265 880 €

  • 4 pièces
  • 3 chambres
  • Surface maison 80 m2

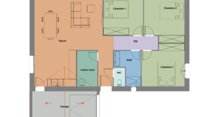
VENTE : maison de 4 pièces (80 m²) à Pluvigner
EMPLACEMENT PRIVILÉGIÉ - MAISON 4 PIÈCES NEUVE
À 23 km de l'océan Atlantique et à deux pas de Lorient, Maisons de l'Avenir Vannes vous présente cette maison de 4 pièces de plain-pied de 80 m² en vente, bénéficiant d'un emplacement privilégié dans Pluvigner (56330).
Elle comporte trois chambres, une cuisine et une salle de bains. La maison est neuve.
Le terrain de la propriété est de 378 m².
La maison est située dans un secteur recherché. Il y a l'École Primaire Publique Joseph Rollo, l'École Primaire Privée Saint Guigner et le Collège Goh Lanno à moins de 10 minutes à pied. Niveau transports, on trouve deux gares (Landaul-Mendon et Landévant) à moins de 10 minutes en voiture. La nationale N165 est accessible à 8 km. Il y a un tennis, une bibliothèque, des commerces, une poissonnerie, une boucherie-charcuterie, un bureau de poste et une supérette à quelques minutes.
Son prix de vente est de 265 880 €.
Prenez contact avec notre agence (DURIF Damien : 02-97-68-32-50) pour tout renseignement sur la maison, sur les modalités de vente ou sur les démarches à suivre. Concrétisez vos projets immobiliers avec Maisons de l'Avenir Vannes.

Mentions légales

Terrain proposé par un partenaire foncier selon disponibilités et autorisation de publicité au prix de 64 000 €. Hors droit d'enregistrement et frais de notaire. Terrain + Maison proposés au prix de 265 880 € (Hors branchements et raccordements, papiers peints, peintures, revêtement de sol dans les chambres. Tarif modifiable sans préavis). Etiquette énergie : A. Différents modèles disponibles pour ce terrain. Assurances et garanties du constructeur (RC professionnelle, décennale, dommage ouvrage, garantie de remboursement de l'acompte, livraison à prix et délai convenu) : https://www.maisonsdelavenir.com/mentions-legales/.

Contactez l'agence de Vannes

02 97 68 32 50

    * Champs obligatoires

    Vos informations sont traitées par HEXAOM et transmises à un conseiller commercial qui vous contactera afin de répondre à votre demande. Les plans et images présentés sur notre site sont la propriété d’HEXAOM et ne peuvent pas être reproduits sans son accord. Pour retrouver notre politique de protection des données personnelles et exercer vos droits conformément à la « loi informatique et liberté » cliquez-ici.