Maison neuve à
Pontarmé
(60520) Référence :
XDSS2476647_1
Prix du projet : Maison avec Terrain
prix 320 000 €
- 5 pièces
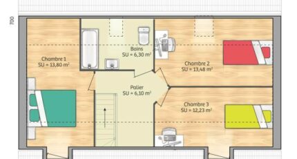
- 3 chambres
- Surface maison 80 m2
🏡 PONTARMÉ (60) - PROJET DE CONSTRUCTION 80 m² - 3 CHAMBRES - GARAGE INTEGRE
À Pontarmé, profitez d'un projet complet de construction sur un terrain de 364 m², idéalement situé dans un environnement calme et recherché, à proximité de Chantilly et Senlis.
Ce projet vous propose une maison traditionnelle de 80 m², très fonctionnelle, avec :
3 chambres,
Belle pièce de vie lumineuse
Cuisine ouverte
3 chambres à l'étage + salle de bain
WC séparés
Maison conforme à la RE2020
Garage Intégré
Le tout sur un terrain entièrement viabilisé avec une façade de 13 m, offrant une implantation simple et harmonieuse.
💶 Prix du projet : 320 000 € (terrain + maison + frais annexes inclus, hors frais de notaire et décoration)
Un projet idéal pour une famille souhaitant construire dans un secteur prisé, avec un budget parfaitement maîtrisé.
📞 Contactez Xavier Dos Santos dès maintenant pour obtenir le détail du projet ou planifier un rendez-vous au 06 16 27 53 27.
Mentions légales
Terrain proposé par un partenaire foncier selon disponibilités et autorisation de publicité au prix de 125 500 €. Hors droit d'enregistrement et frais de notaire. Terrain + Maison proposés au prix de 320 000 € (Hors branchements et raccordements, papiers peints, peintures, revêtement de sol dans les chambres. Tarif modifiable sans préavis). Etiquette énergie : A. Différents modèles disponibles pour ce terrain. Assurances et garanties du constructeur (RC professionnelle, décennale, dommage ouvrage, garantie de remboursement de l'acompte, livraison à prix et délai convenu) : https://www.maisons-france-confort.fr/mentions-legales/. HEXAOM Services est enregistré auprès de l'ORIAS en tant que Courtier en financement, Niveau 1, sous le numéro 14001345.Agence Maisons France Confort de Compiègne (60200)
- Téléphone :
- 03 44 86 81 34
- Adressse :
- 47, cours Guynemer
60200 Compiègne, France
