Maison neuve à
Pontpoint
(60700) Référence :
CY2317264_2
Prix du projet : Maison avec Terrain
prix 268 000 €
- 5 pièces
- 3 chambres
- Surface maison 90 m2
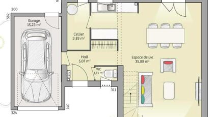
Maison de 5 pièces (90 m²) en vente à Pontpoint
PROCHE GARE - MAISON 5 PIÈCES NEUVE
En vente : à deux pas de Compiègne, nous vous proposons cette maison de 5 pièces de 90 m² proche de la gare de Pontpoint (60700). Elle dispose de trois chambres, d'une cuisine et d'une salle de bains.
Le terrain de la maison s'étend sur 510 m².
Cette maison possède 2 niveaux. Elle est neuve.
Il y a l'École Primaire Chadufaux-Massé, l'École Maternelle Pierre Masse et l'École Primaire Rostand-Lhermite à moins de 10 minutes à pied. Côté transports en commun, on trouve quatre gares à moins de 10 minutes en voiture. L'autoroute A1 est accessible à 4 km. Il y a deux boulangeries à quelques minutes du logement.
Il est à vendre pour la somme de 268 000 €.
Contactez Cedric YAHIAOUI (tél : 06-66-57-00-63) pour toute information sur la maison, sur les démarches à suivre ou sur les modalités de vente. Faites de vos projets immobiliers une réalité avec Maisons France Confort Magny-le-Hongre.
Annonce proposée par un Agent Commercial Partenaire.
Mentions légales
Terrain proposé par un partenaire foncier selon disponibilités et autorisation de publicité au prix de 90 000 €. Hors droit d'enregistrement et frais de notaire. Terrain + Maison proposés au prix de 178 000 € (Hors branchements et raccordements, papiers peints, peintures, revêtement de sol dans les chambres. Tarif modifiable sans préavis). Etiquette énergie : A. Différents modèles disponibles pour ce terrain. Assurances et garanties du constructeur (RC professionnelle, décennale, dommage ouvrage, garantie de remboursement de l'acompte, livraison à prix et délai convenu) : https://www.maisons-france-confort.fr/mentions-legales/. HEXAOM Services est enregistré auprès de l'ORIAS en tant que Courtier en financement, Niveau 1, sous le numéro 14001345.Agence Maisons France Confort de Magny-le-Hongre (77700)
- Téléphone :
- 01 84 80 92 96
- Adressse :
- 11 rue de Courtalin
77700 Magny-le-Hongre, France
