Maison neuve à
Pontpoint (60700) Référence : FBpontpoint64_3

Prix du projet : Maison avec Terrain

prix 277 000 €

  • 5 pièces
  • 3 chambres
  • Surface maison 80 m2

Maison de 5 pièces (80 m²) en vente à Pontpoint
EMPLACEMENT PRIVILÉGIÉ - MAISON 5 PIÈCES NEUVE
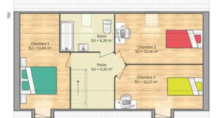
À deux pas de Compiègne, découvrez à vendre, bénéficiant d'un emplacement privilégié dans Pontpoint (60700), cette maison de 5 pièces de 80 m² et de 530 m² de terrain. Son intérieur offre trois chambres, une cuisine et une salle de bains.
Cette maison comporte 2 niveaux. Elle est neuve.
Ce bien est situé dans un secteur attractif. L'École Primaire Massé-Chadufaux et l'École Primaire Rostand-Lhermite se trouvent à moins de 10 minutes à pied. Côté transports, il y a quatre gares à moins de 10 minutes en voiture. L'autoroute A1 est accessible à 4 km.
Il est à vendre pour la somme de 277 000 €.
N'hésitez pas à prendre contact avec notre agence (Fabrice BONELLO : 06-09-50-50-09) pour tout renseignement sur la maison, sur les modalités de vente ou sur les démarches à suivre. Faites de vos projets immobiliers une réalité avec Maisons France Confort Beauvais.

Mentions légales

Terrain proposé par un partenaire foncier selon disponibilités et autorisation de publicité au prix de 90 000 €. Hors droit d'enregistrement et frais de notaire. Terrain + Maison proposés au prix de 277 000 € (Hors branchements et raccordements, papiers peints, peintures, revêtement de sol dans les chambres. Tarif modifiable sans préavis). Etiquette énergie : A. Différents modèles disponibles pour ce terrain. Assurances et garanties du constructeur (RC professionnelle, décennale, dommage ouvrage, garantie de remboursement de l'acompte, livraison à prix et délai convenu) : https://www.maisons-france-confort.fr/mentions-legales/. HEXAOM Services est enregistré auprès de l'ORIAS en tant que Courtier en financement, Niveau 1, sous le numéro 14001345.

Contactez l'agence de Beauvais

03 44 04 40 04

    * Champs obligatoires

    Vos informations sont traitées par HEXAOM et transmises à un conseiller commercial qui vous contactera afin de répondre à votre demande. Les plans et images présentés sur notre site sont la propriété d’HEXAOM et ne peuvent pas être reproduits sans son accord. Pour retrouver notre politique de protection des données personnelles et exercer vos droits conformément à la « loi informatique et liberté » cliquez-ici.