Maison neuve à
Port-en-Bessin-Huppain (14520) Référence : JS2485006_2

Prix du projet : Maison avec Terrain

prix 236 600 €

  • 5 pièces
  • 3 chambres
  • Surface maison 95 m2

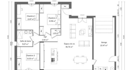
Maison T5 (95 m²) à vendre à Port-en-Bessin-Huppain
IDÉALEMENT SITUÉE - MAISON 5 PIÈCES NEUVE
À vendre : votre agence Maisons France Confort Bayeux est ravie de vous proposer cette maison de 5 pièces de plain-pied de 95 m², idéalement située dans Port-en-Bessin-Huppain (14520).
Elle dispose de trois chambres, d'une cuisine et de deux salles de bains. La maison est neuve.
Le terrain du bien s'étend sur 441 m².
Cette maison se trouve dans un quartier attractif. L'École Primaire Paul Emile Victor y est implantée. Côté transports en commun, il y a la gare Bayeux à moins de 10 minutes en voiture. La nationale N13 est accessible à 6 km. On trouve une poissonnerie à proximité de la maison.
Elle est proposée à l'achat pour 236 600 €.
Contactez notre constructeur (HUE Emilie : 06-29-81-46-66) pour plus d'informations sur la propriété, sur les modalités de vente ou sur les démarches à suivre. Donnez vie à vos projets immobiliers avec Maisons France Confort Bayeux.

Annonce proposée par un Agent Commercial Partenaire.

Mentions légales

Terrain proposé par un partenaire foncier selon disponibilités et autorisation de publicité au prix de 81 600 €. Hors droit d'enregistrement et frais de notaire. Terrain + Maison proposés au prix de 236 600 € (Hors branchements et raccordements, papiers peints, peintures, revêtement de sol dans les chambres. Tarif modifiable sans préavis). Etiquette énergie : A. Différents modèles disponibles pour ce terrain. Assurances et garanties du constructeur (RC professionnelle, décennale, dommage ouvrage, garantie de remboursement de l'acompte, livraison à prix et délai convenu) : https://www.maisons-france-confort.fr/mentions-legales/. HEXAOM Services est enregistré auprès de l'ORIAS en tant que Courtier en financement, Niveau 1, sous le numéro 14001345.

Contactez l'agence de Bayeux

02 31 51 20 91

    * Champs obligatoires

    Vos informations sont traitées par HEXAOM et transmises à un conseiller commercial qui vous contactera afin de répondre à votre demande. Les plans et images présentés sur notre site sont la propriété d’HEXAOM et ne peuvent pas être reproduits sans son accord. Pour retrouver notre politique de protection des données personnelles et exercer vos droits conformément à la « loi informatique et liberté » cliquez-ici.