Maison neuve à
Quincy-Voisins (77860) Référence : CY2400704_1

Prix du projet : Maison avec Terrain

prix 278 000 €

  • 5 pièces
  • 3 chambres
  • Surface maison 80 m2

Maison de 5 pièces (80 m²) en vente à Quincy-Voisins
IDÉALEMENT SITUÉE - MAISON 5 PIÈCES NEUVE
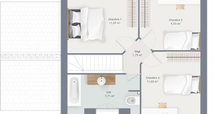
À vendre : à deux pas du Transilien P (gare d'Esbly, 30 min de Paris), Maisons France Confort Mareuil-lès-Meaux vous propose cette maison de 5 pièces de 80 m² et de 209 m² de terrain idéalement située dans Quincy-Voisins (77860). Elle est composée de trois chambres, d'une cuisine et d'une salle de bains.
C'est une maison de 2 niveaux. Elle est neuve.
Cette maison se situe dans un secteur convoité. Des établissements scolaires primaires sont implantés à moins de 10 minutes à pied. Niveau transports, il y a la ligne de RER A (Chessy-Marne-La-Vallée) ainsi que huit gares à moins de 10 minutes en voiture. Il y a un tennis, une bibliothèque, une boulangerie, trois commerces, une boucherie-charcuterie, une supérette et une épicerie à quelques minutes de la maison.
Elle est à vendre pour la somme de 278 000 €.
N'hésitez pas à prendre contact avec Cedric YAHIAOUI (tél : 06-66-57-00-63) pour tout renseignement sur la maison. Maisons France Confort Mareuil-lès-Meaux vous accompagne dans toutes vos démarches et à toutes les étapes de votre projet.

Annonce proposée par un Agent Commercial Partenaire.

Mentions légales

Terrain proposé par un partenaire foncier selon disponibilités et autorisation de publicité au prix de 134 000 €. Hors droit d'enregistrement et frais de notaire. Terrain + Maison proposés au prix de 278 000 € (Hors branchements et raccordements, papiers peints, peintures, revêtement de sol dans les chambres. Tarif modifiable sans préavis). Etiquette énergie : A. Différents modèles disponibles pour ce terrain. Assurances et garanties du constructeur (RC professionnelle, décennale, dommage ouvrage, garantie de remboursement de l'acompte, livraison à prix et délai convenu) : https://www.maisons-france-confort.fr/mentions-legales/. HEXAOM Services est enregistré auprès de l'ORIAS en tant que Courtier en financement, Niveau 1, sous le numéro 14001345.

Contactez l'agence de Mareuil-lès-Meaux

01 60 09 28 30

    * Champs obligatoires

    Vos informations sont traitées par HEXAOM et transmises à un conseiller commercial qui vous contactera afin de répondre à votre demande. Les plans et images présentés sur notre site sont la propriété d’HEXAOM et ne peuvent pas être reproduits sans son accord. Pour retrouver notre politique de protection des données personnelles et exercer vos droits conformément à la « loi informatique et liberté » cliquez-ici.