Maison neuve à
Quincy-Voisins
(77860) Référence :
IL2442794_3
Prix du projet : Maison avec Terrain
prix 335 000 €
- 5 pièces
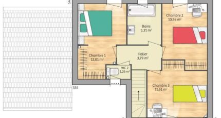
- 3 chambres
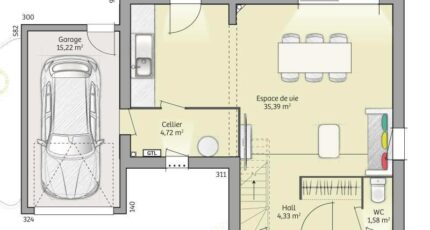
- Surface maison 90 m2
VENTE d'une maison T5 (90 m²) à Quincy-Voisins
PROCHE D'AULNAY-SOUS-BOIS - MAISON 5 PIÈCES NEUVE
En vente : au pied du Transilien P (gare d'Esbly, 30 min de Paris), à Quincy-Voisins (77860), Maisons France Confort Magny-le-Hongre vous propose cette maison de 5 pièces de 90 m² et de 354 m² de terrain. Son intérieur comporte trois chambres, une cuisine et une salle de bains.
Il s'agit d'une maison de 2 niveaux. Elle est neuve.
Des établissements scolaires primaires sont implantés à moins de 10 minutes à pied. Niveau transports, il y a la ligne de RER A (Chessy-Marne-La-Vallée) ainsi que huit gares à moins de 10 minutes en voiture. On trouve un tennis, une bibliothèque, une boulangerie, trois commerces, une boucherie-charcuterie, une supérette et une épicerie à proximité.
Elle est à vendre pour la somme de 335 000 €.
Prenez contact avec Ishane LASLEDJ (06-68-91-18-74) pour toute information sur la maison. Donnez vie à vos projets immobiliers avec Maisons France Confort Magny-le-Hongre.
Annonce proposée par un Agent Commercial Partenaire.
Mentions légales
Terrain proposé par un partenaire foncier selon disponibilités et autorisation de publicité au prix de 170 000 €. Hors droit d'enregistrement et frais de notaire. Terrain + Maison proposés au prix de 335 000 € (Hors branchements et raccordements, papiers peints, peintures, revêtement de sol dans les chambres. Tarif modifiable sans préavis). Etiquette énergie : A. Différents modèles disponibles pour ce terrain. Assurances et garanties du constructeur (RC professionnelle, décennale, dommage ouvrage, garantie de remboursement de l'acompte, livraison à prix et délai convenu) : https://www.maisons-france-confort.fr/mentions-legales/. HEXAOM Services est enregistré auprès de l'ORIAS en tant que Courtier en financement, Niveau 1, sous le numéro 14001345.Agence Maisons France Confort de Magny-le-Hongre (77700)
- Téléphone :
- 01 84 80 92 96
- Adressse :
- 11 rue de Courtalin
77700 Magny-le-Hongre, France
