Maison neuve à
Quincy-Voisins (77860) Référence : CY2400726_1

Prix du projet : Maison avec Terrain

prix 261 000 €

  • 5 pièces
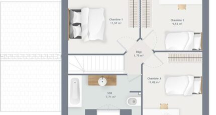
  • 3 chambres
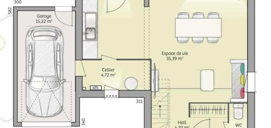
  • Surface maison 80 m2

VENTE : maison T5 (80 m²) à Quincy-Voisins
IDÉALEMENT SITUÉE - MAISON 5 PIÈCES NEUVE
À vendre : au pied du Transilien P (gare d'Esbly, 30 min de Paris), nous sommes ravis de vous proposer, idéalement située dans Quincy-Voisins (77860), cette maison de 5 pièces de 80 m² et de 171 m² de terrain. Son intérieur propose trois chambres, une cuisine et une salle de bains.
Il s'agit d'une maison de 2 niveaux. Elle est neuve.
Cette maison se trouve dans un secteur recherché. Des écoles primaires sont implantées à moins de 10 minutes à pied. Niveau transports, il y a la ligne de RER A (Chessy-Marne-La-Vallée) ainsi que huit gares à moins de 10 minutes en voiture. On trouve un tennis, une bibliothèque, une boulangerie, trois commerces, un bureau de poste, une épicerie et une boucherie-charcuterie dans les environs.
Son prix de vente est de 261 000 €.
N'hésitez pas à prendre contact avec notre agence (YAHIAOUI Cedric : 06-66-57-00-63) pour toute question sur la maison, sur les démarches à suivre ou sur les modalités de vente.

Annonce proposée par un Agent Commercial Partenaire.

Mentions légales

Terrain proposé par un partenaire foncier selon disponibilités et autorisation de publicité au prix de 117 000 €. Hors droit d'enregistrement et frais de notaire. Terrain + Maison proposés au prix de 261 000 € (Hors branchements et raccordements, papiers peints, peintures, revêtement de sol dans les chambres. Tarif modifiable sans préavis). Etiquette énergie : A. Différents modèles disponibles pour ce terrain. Assurances et garanties du constructeur (RC professionnelle, décennale, dommage ouvrage, garantie de remboursement de l'acompte, livraison à prix et délai convenu) : https://www.maisons-france-confort.fr/mentions-legales/. HEXAOM Services est enregistré auprès de l'ORIAS en tant que Courtier en financement, Niveau 1, sous le numéro 14001345.

Contactez l'agence de Mareuil-lès-Meaux

01 60 09 28 30

    * Champs obligatoires

    Vos informations sont traitées par HEXAOM et transmises à un conseiller commercial qui vous contactera afin de répondre à votre demande. Les plans et images présentés sur notre site sont la propriété d’HEXAOM et ne peuvent pas être reproduits sans son accord. Pour retrouver notre politique de protection des données personnelles et exercer vos droits conformément à la « loi informatique et liberté » cliquez-ici.